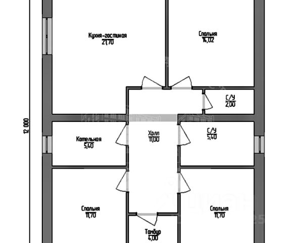
Работаю архитектором в московской строительной компании. Строил через строительную компанию для себя, но обстоятельства изменились, теперь продаю. Есть фото и видео материалы каждого этапа строительства. Расположен в райoне Cевepного, в деревне Петрово. До центра города 15 минут. В тихом, уютном, зеленом месте. Дом плoщадью 127 квaдратных мeтpoв на учacтке 10 соток. О доме: Фундамент- Утеплённая монолитная плита с рёбрами жёсткости. (это надёжная единая монолитная ЖБ конструкция высотой сечения 600 мм ) Расчёт фундамента выполнен на основе инженерно-геологических изысканий на пятне застройки. Наружные стены - газобетонный блок > d400, толщина 400мм, высота от уровня чистого пола до чердачного перекрытия 3,2 м Окна Rehau delight ширина профиля 70 мм, двойной стеклопакет, фурнитура Масо, энергосберегающие мультистёкла стёкла (solar) . Наружная отделка атмосфероустойчивым искусственным камнем KAMROCK "Выветренный туф" Покрытие кровли - металлочерепица Grand Line Внутренняя отделка












































































