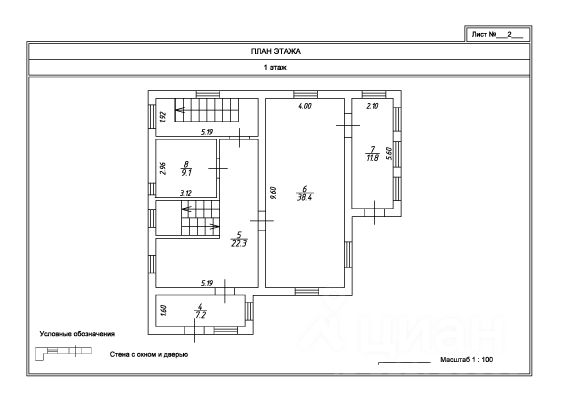
Арт. 124154189 Продается одноэтажный частный дом в современном стиле. Идеальное сочетание комфорта и удобства. Дом находится в деревне Колюпаново, площадь дома составляет 202,6 кв.м. Фундамент: утепленная плита, стены газоблок шириной 400мм, крыша мягкая кровля. Высота потолков: 3,1 м, утепление кровли утеплителем 200мм, широкие тамбуры и коридоры, просторные комнаты и кухня-гостиная, большие витражные окна (70-й профиль REHAU), также установлена водосточная система. Внутренние стены выполнены из кладки красным кирпичом, а снаружи кладка облицовочный кирпич BRAER. По всей внутренней площади дома сделана стяжка и теплый пол. В кухне-гостиной подготовлено место под монтаж камина. Также в доме запланировано место под детскую игровую на мансардном этаже. К дому подведены все центральные коммуникации: газ, вода, электричество 15 квт, установлен септик закрытого типа. К дому пристроен навес под автомашины площадью 62,5 кв.м, а также смонтирована веранда площадью 27 кв.м. Дом расположен на участке 14 соток. По периметру участка уже установлен забор на монолитной ленте с усилением в местах установки столбов. Установлены откатные ворота с пультом. Гарантия качества внутренних и внешних работ, а также используемых стройматериалов. Дорога круглогодичная ( в зимнее время организована уборка снега). Данная локация очень удобна для жизни и отдыха, тут отлично работает интернет на телефоне, до ТЦ 21 Век, ехать 20 минут. В деревне Колюпаново есть магазины, сетевой магазин "Пятерочка", своя поликлиника, и вся основная инфраструктура. Каждый час ходит рейсовый автобус. Заинтересовал объект? Оперативный показ в любое время. Мы каждый день анализируем калужский рынок недвижимости! Мы гарантируем полное сопровождение и чистоту юридической сделки! Агентство недвижимости "Самолет Плюс" - Всегда лучший результат! Объект 124154189










































































