


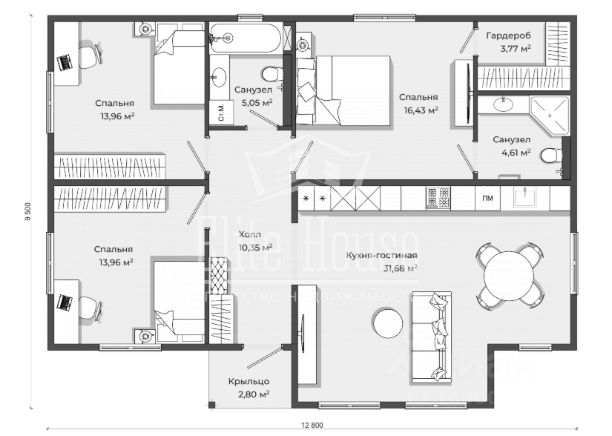
Внимание! Отличный дом для круглогодичного проживания для дружной и большой семьи, с двумя отдельными входами, разными кухнями и санузлами. Дом находится в р-не Подзавалья в 5 минутах от центра города. Дом стоился для себя, стены из керамического блока, толщина стен более полуметра.В доме сделан качественный ремонт, теплые полы, плитка, на ремонт денег не жалели. Общая площадь 386 кв.м, расположен на участке 8 соток с обработанной землей и саженцами. На первом этаже кухня - гостиная 33 кв.м , большой просторный холл почти 25 кв.м, санузел на первом этаже и на втором (6 кв и и 11м).На втором этаже комнаты 27 кв. м и почти 13, просторный коридор 17,6 кв.м. Перед домом автоматические ворота и большой навес на 2 машины. Звоните! Организую оперативный показ! Дом подходит под ипотеку и другие виды сертификатов. Почему нужно работать с Федеральной компанией "Этажи"? - Юридическое сопровождение сделки и гарантия финансовой защиты - Уникальные условия на услуги страхования объекта - Самые низкие ипотечные ставки - Новостройка без комиссии - Программа лояльности "Этажи Бонус" для клиентов компании "Этажи" от партнеров . Код пользователя: 56003 Номер в базе: 2913889 Продам дом в Калуге.

















































































































































