Артикул: 541428
Продается 3-комнатная квартира по адресу: Школьная улица, 7, посёлок Резвань, Калуга
Нашим покупателям оформим ипотеку под ключ по ставке - 13,9% годовых!
Предлагаем вашему вниманию комфортабельное и вместительное жильё, расположенное в одном из самых живописных районов Калуги. Это идеальное место для тех, кто предпочитает спокойствие, близость к природным красотам и современные удобства.
О квартире
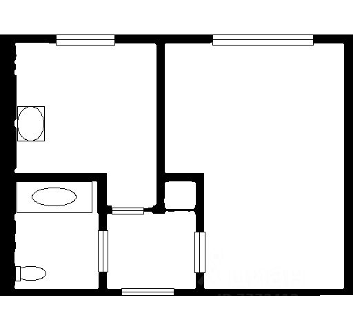
Продается просторная и уютная трехкомнатная квартира общей площадью 58,2 кв.м. Комнаты изолированные (10,3 кв.м., 17,9 кв.м. и 13,1 кв.м.), расположены на разные стороны, что обеспечивает отличную приватность и хорошее естественное освещение. Просторная кухня 6 кв.м., застекленный балкон, раздельный санузел. Окна пластиковые, выходят во двор. Сантехника новая, санузел отделан плиткой, на кухне установлена новая колонка. Выполнен косметический ремонт, а при продаже остается кухонный гарнитур. Тихие соседи и чистый подъезд дополняют преимущества этого жилья.
О районе
Поселок Резвань по праву считается одним из самых зеленых и экологически чистых районов Калуги. Здесь вас ждет близость к сосновому бору и сероводородным озерам, что создает уникальную атмосферу для отдыха и прогулок на свежем воздухе. Район отличается развитой инфраструктурой: в шаговой доступности находятся детский сад, школа, магазин "Магнит", поликлиника и аптека. Все необходимое для комфортной жизни — рядом, при этом до центра города можно добраться всего за 15 минут на машине. Это идеальное место для семей с детьми и тех, кто стремится к гармонии с природой.
О доме
Дом расположен в спокойном и ухоженном районе, отличается надежностью и удобством для проживания. Здание находится в хорошем состоянии, территория благоустроена, что создает приятную среду для жильцов. Чистый подъезд и тихие соседи делают жизнь здесь максимально комфортной.
Подробнее об инфраструктуре (указано время ходьбы)
Школы
-Средняя общеобразовательная школа 37 - 235 м (3 мин.)
Детские сады
-Детский сад 86 Берёзка - 195 м (3 мин.)
Продуктовые магазины
-Магнит - 87 м (1 мин.)
-24 Часа - 168 м (2 мин.)
-Продукты - 172 м (2 мин.)
-Пятёрочка - 537 м (7 мин.)
Медицинские учреждения
-Калужская городская больница 5, врачебная амбулатория - 133 м (2 мин.)
Аптеки
-ФАП Резвань - 130 м (2 мин.)
-Калугафармация - 189 м (2 мин.)
-Здесь аптека - 229 м (3 мин.)
Пункты выдачи заказов
-Wildberries - 60 м (1 мин.)
-Отделение почтовой связи 248901 - 61 м (1 мин.)
-Ozon - 344 м (5 мин.)
Остановки общественного транспорта
-"Резвань" - 141 м (2 мин.)
-"Буровая улица" - 341 м (5 мин.)
Не упустите шанс стать владельцем этой замечательной квартиры в одном из лучших районов Калуги! Свяжитесь с нами прямо сейчас, чтобы записаться на просмотр и узнать все детали.
Агентство недвижимости "ВАШ ЭТАЖ" — это команда высококвалифицированных специалистов, включая:
профессиональных риелторов с глубоким знанием рынка, опытных юристов, обеспечивающих юридическую чистоту сделок, экспертов п