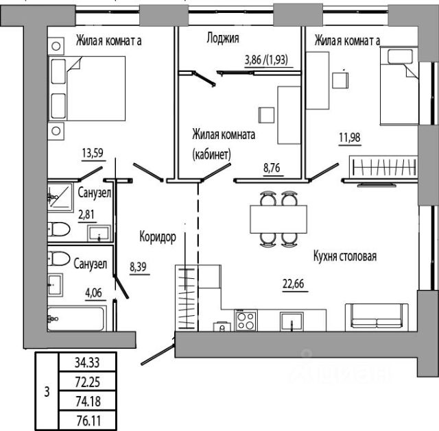
112 700 ₽/м²
Продаётся 3-комнатная квартира в строящемся доме (Дом 3 блок-секции 4-6), срок сдачи: I-кв. 2028, общей площадью 70.61 кв.м., на 2 этаже. "Острова" - уникальное место, город и природа здесь равноправны. Обладая преимуществами города, мы находимся среди живой природы. И при этом наслаждаемся сценариями жизни столь редкими для городской среды. Новые кварталы интегрированы в существующую социально-экономическую инфраструктуру. При этом концепция 15-минутного города предполагает создание собственной, что даст толчок к развитию всей северной части города. Проектом предусматривается строительство детских садов и школы, делового и спортивного центров, арт-пространства и торговых объектов. В итоге мы формируем новый социально-экономический центр для всего района.



















































































