


135 525 ₽/м²
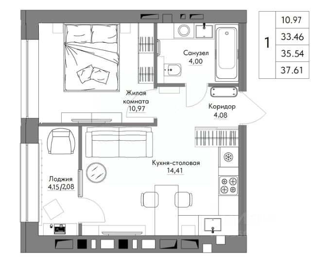
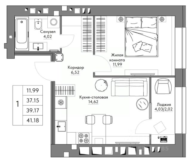
ЖК "Зелёный" это новый ЖК по ул. Новая, состоящий из 3 домов. В продаже первый 1 подъездный 16-ти этажный монолитно-кирпичный дом комфорт-класса с собственной котельной. В стоимость квартиры уже входит предчистовая отделка! Сдача первого дома 1 кв. 2027 г. В шаговой доступности все необходимое: Гипермаркет Лента, магазины, рестораны и кафе, кофейни, фитнес-клуб, салоны красоты, пункты выдачи маркетплейсов, клиники и аптеки, центры дополнительного образования для детей и подростков, пруд, спортивные комплексы, а также социальные объекты 2 школы, 3 детских сада и колледж. Для комфортного проживания мы предусмотрели: - благоустроенный безопасный двор с видеонаблюдением. - просторная парковка. - ландшафтное озеленение двора с местами для отдыха. - вход в подъезд на уровне земли. - стильный дизайн холлов подъездов с просторными колясочными - многофункциональная зона для спорта: для игр в футбол, баскетбол, теннис, зона тенировок высокоинтенсивных тернировок, вело-беговые дорожки. - современные безопасные детские площадки, разделенные по возрастам. Современные Smart-планировки позволят разумно использовать пространство квартиры и обустроить свой дом так, чтобы в нем было уютно и удобно жить. В квартирах предусмотрены гостевые и приватные зоны, гардеробные, ниши под шкафы-купе, просторные лоджии, балконы. ОТДЕЛКА: Мы сдаем квартиры с предчистовой отделкой. Выполнена разводка электричества и отопления, стяжка пола, выровнены и оштукатурены стены. Установлены: стальные радиаторы с терморегулятором, приборы учета, надёжная металлическая входная дверь, датчики залития для перекрытия водоснабжения, противопожарные датчики. Высота потолков от 2,7 до 3 метров, предусмотрены энергосберегающие двухкамерные стеклопакеты - 70 профиль, Окна увеличены (высота от 1,8 до 2 метра) и установлен детский замок для безопасности. Вам останется только выбрать материалы и приступить к ремонту. Все квартирные коммуникации расположены в общем коридоре, ключи только у собственника и УК СПОСОБЫ ПОКУПКИ: Наши специалисты будут сопровождать вас на всех этапах сделки: поможем получить одобрение по ипотеке, снизить ежемесячный платеж и подобрать лучшие условия. - Ипотека для IT специалистов - 5% - Семейная ипотека от 5% - Материнский капитал - Все виды сертификатов: жилищный, "чернобыльский", материнский, военный, для детей-сирот, социальные выплаты, в том числе для граждан, потерявших жильё в результате ЧС. - 100% оплата наличными - Рассрочка 0% до 31.08.2026 Звоните прямо сейчас — мы с радостью ответим на все вопросы и подберем для вас лучшие условия! Наш офис: ул. Билибина д.33





























































































