Мы используем куки-файлы. Соглашение об использовании
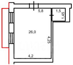
Помещение свободного назначения, 26 м²

Продается помещение свободного назначения, 26 м²

Свободного назначения 26м2 цоколь

Площадь26 м²
Этаж1 из 5
ПомещениеСвободно
Скидка реальному покупателью. Продаётся нежилое помещение 26 кв.м. - хорошей прямоугольной планировки с удобно выделенной вне основного периметра зоной для организации сан.узла. Цокольный этаж. Выполнена дополнительная гидроизоляция. Расположено в торце здания. Рядом множество магазинов (в т.ч. строительных), аптек. Большая парковка, где всегда есть места, удобный заезд, первая линия на оживлённой улице. Отопление, электричество, канализация, водоснабжение (горячее и холодное), пожарная сигнализация.
lock

Войдите или зарегистрируйтесь
для просмотра информации

Просматривайте условия сделки и всю информацию об объекте
Сохраняйте фильтры в поиске и не вводите заново
Доступ к избранному с любого устройства
Неограниченное добавление в избранное
Позвоните автору
Вам ответят на все вопросы
Остались вопросы по объявлению?
Позвоните владельцу объявления и уточните необходимую информацию.
  • Инфраструктура
  • Похожие рядом
  • Тип зданияОфисно-жилой комплекс
  • Общая площадь26 м²
Естественная вентиляция
Центральное отопление
Сигнализация
Помощь надёжных риелторов
Риелтор партнёр Циан поможет купить или продать любую недвижимость
СобственникID 139934535
  • Предоставил паспорт
1 240 000 ₽
16 305 $
13 836
Цена за метр
47 693 ₽
Налог
УСН
СобственникID 139934535
  • Предоставил паспорт