Мы используем куки-файлы. Соглашение об использовании
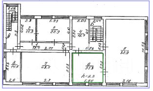
Помещение свободного назначения, 734,3 м²
Площадь734,3 м²
Этаж1 из 2
ПомещениеСвободно
* Предлагаются к продаже объекты недвижимости, расположенные по адресу: Калужская область, Дзержинский р-н, п Полотняный Завод, ул Московская, зд. 6 В следующем составе: 1) Нежилое помещение, общей площадью 494,1 кв.м.; кадастровый номер 40:04:030703:313 Все основные коммуникации, централизованные. 2) Кирпичный гараж, общей площадью 240,2 кв.м., кадастровый номер 40:04:030703:273 Коммуникации: электричество. Второй собственник помещений в здании - "Почта России" Земельный участок, площадью 1081,0 кв.м., кадастровый номер 40:04:030306:1, используется на праве аренды. Существенным условием договора является заключение сроком на 49 лет: - аренды помещения 5 площадью 31 кв.м., расположенного в здании гаража - аренды помещений площадью 42,5 кв.м., расположенных на 1 этаже и в подвале нежилого здания. (!) Стоимость является предварительной и будет уточнена после завершения всех необходимых внутрикорпоративных процедур. Продажа от прямого собственника - ПАО "Ростелеком". Юридическая чистота сделки гарантирована. Звоните! Ответим на все Ваши вопросы.
lock

Войдите или зарегистрируйтесь
для просмотра информации

Просматривайте условия сделки и всю информацию об объекте
Сохраняйте фильтры в поиске и не вводите заново
Доступ к избранному с любого устройства
Неограниченное добавление в избранное
Позвоните автору
Вам ответят на все вопросы
Остались вопросы по объявлению?
Позвоните владельцу объявления и уточните необходимую информацию.
  • Инфраструктура
  • Похожие рядом
  • Площадь участка0 сот.
  • Общая площадь734,3 м²
Помощь надёжных риелторов
Риелтор партнёр Циан поможет купить или продать любую недвижимость
10 000 000 ₽
131 431 $
111 843
Цена за метр
13 619 ₽
Налог
НДС включен: 1 803 278 ₽
Агентство недвижимости
Документы проверены