Мы используем куки-файлы. Соглашение об использовании
Помещение свободного назначения, 1 172 м²

Продается помещение свободного назначения, 1 172 м²

Площадь1 172 м²
Этаж1 из 4
ПомещениеСвободно
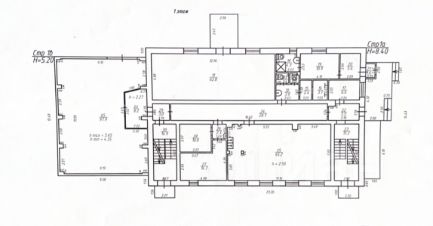
Продается административно-производственное здание по адресу: Калужская обл., Жуковский р-н, г. Кременки, ул. Лесная, д. 4а. Удобный подъезд со стороны Москвы, Калуги Тулы, Серпухова. Здание подойдет под различные виды деятельности. От размещения офиса до производственной деятельности. Общая площадь 1172,3 кв. м. Площадь участка - 15 соток. Территория огорожена забором. Границы установлены. Коммуникации: центральное водоснабжение, отопление, электричество (есть возможность расширения мощности). Кадастровый номер участка: 40:07:180108:18. Здание имеет 4-этажа (в том числе подвальный этаж). Построен из белого силикатного кирпича с перекрытиями из железобетонных плит. Фундамент: сборные железобетонные блоки. Крыша покрыта металлическим оцинкованным профлистом.Этажи коридорного типа с производственными, складскими и офисными помещениями. На каждом этаже есть санузел и помещения для принятия душа. На входе оборудован пост охраны. К зданию пристроено кирпичное складское помещение с выходом в основное здание. Перекрытия железобетонные. Высота потолка 5,2 м. Пристройка оборудована секционными воротами. Установлен кран балка. Расстояние до Москвы 110 км, до Серпухова 22 км, до Калуги 120 км, до Тарусы 25 км. Показы по предварительной договоренности. С 10.00 до 20.00 в будни и с 11.00 до 16.00 в выходные. Звоните, записывайтесь на просмотр. Номер объекта: #1/536943/24566
lock

Войдите или зарегистрируйтесь
для просмотра информации

Просматривайте условия сделки и всю информацию об объекте
Сохраняйте фильтры в поиске и не вводите заново
Доступ к избранному с любого устройства
Неограниченное добавление в избранное
Позвоните автору
Вам ответят на все вопросы
Остались вопросы по объявлению?
Позвоните владельцу объявления и уточните необходимую информацию.
  • Инфраструктура
  • Похожие рядом
  • Тип зданияСвободное
  • Категория зданияДействующее
  • Общая площадь1 172 м²
Помощь надёжных риелторов
Риелтор партнёр Циан поможет купить или продать любую недвижимость
27 099 000 ₽
357 256 $
303 612
Цена за метр
23 123 ₽
Налог
НДС включен: 4 886 704 ₽
Агентство недвижимости