Мы используем куки-файлы. Соглашение об использовании
Помещение свободного назначения, 2 365,8 м²

Продается помещение свободного назначения, 2 365,8 м²

Площадь2 365,8 м²
Этаж4 из 4
ПомещениеЗанято
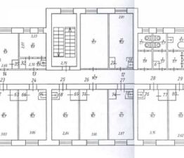
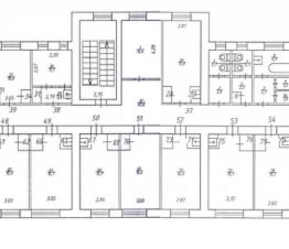
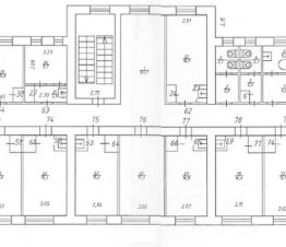
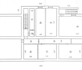
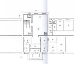
Продается нежилое помещение - гостиница (часть подвала, часть 1-го этажа, 2-4 этажи) в 4-х этажном кирпичном здании с земельным участком под зданием. Площадь помещения - 2365,8 кв.м. Площадь земельного участка - 1450 кв.м. Имеются обременения. Подробная информация отображена в аукционной документации и приложениях к ней, размещенной на ЭТП "Сбербанк-АСТ", номер процедуры SBR028-2602250050. Продажа осуществляется путем проведения открытого аукциона на повышение на ЭТП "Сбербанк-АСТ", номер процедуры SBR028-2602250050. Возможна рассрочка оплаты на срок не более 1 (одного) календарного года.
lock

Войдите или зарегистрируйтесь
для просмотра информации

Просматривайте условия сделки и всю информацию об объекте
Сохраняйте фильтры в поиске и не вводите заново
Доступ к избранному с любого устройства
Неограниченное добавление в избранное
Позвоните автору
Вам ответят на все вопросы
Остались вопросы по объявлению?
Позвоните владельцу объявления и уточните необходимую информацию.
  • Инфраструктура
  • Похожие рядом
  • Площадь участка0,14 га
  • Общая площадь2 365,8 м²
  • Статус участкаВ собственности
Центральное отопление
Помощь надёжных риелторов
Риелтор партнёр Циан поможет купить или продать любую недвижимость
СобственникID 137028709
    89 495 735 ₽
    1 173 732 $
    1 004 022
    Цена за метр
    37 829 ₽
    Налог
    НДС включен: 16 138 575 ₽
    СобственникID 137028709