Мы используем куки-файлы. Соглашение об использовании
Помещение свободного назначения, 550 м²

Продается помещение свободного назначения, 550 м²

Площадь550 м²
Этаж2 из 2
ПомещениеСвободно
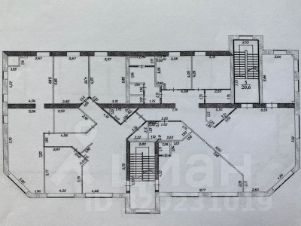
Предлагается Вашему вниманию уникальное предложение ,ПСН не жилое 550м.кв., меблированное , в активной части города. В данный момент используется как офис.Помещение находиться на 2 этаже с отдельным входом в отдельно стоящем здании и состоит из 10 кабинетов , кухонной зоны ,4 сан узлов ,серверной и несколько вспомогательных комнат. Земельный участок составляет 11.3 сотки -Земли населенных пунктов. Помещение находиться на одном уровне с выходом на 3 этаж, (мансарду) эксплуатируемую ,за счет которой можно существенно увеличить площадь. Ремонт современный из дизайнерских материалов. Здание построено полностью из кирпича , введено в эксплуатацию в 2015г.Коммуникации городские; вода,эл-во ,канализация,отопление свое 2 котла по 40 квт.,вентиляция и 14 кондиционеров.В помещении не так много несущих стен ,где можно играть площадью под свои нужды.Остальные вопросы по телефону.
lock

Войдите или зарегистрируйтесь
для просмотра информации

Просматривайте условия сделки и всю информацию об объекте
Сохраняйте фильтры в поиске и не вводите заново
Доступ к избранному с любого устройства
Неограниченное добавление в избранное
Позвоните автору
Вам ответят на все вопросы
Остались вопросы по объявлению?
Позвоните владельцу объявления и уточните необходимую информацию.
  • Инфраструктура
  • Похожие рядом
Помощь надёжных риелторов
Риелтор партнёр Циан поможет купить или продать любую недвижимость
75 000 000 ₽
993 019 $
849 545
Цена за метр
136 364 ₽
Налог
УСН
Агентство недвижимости