Мы используем куки-файлы. Соглашение об использовании

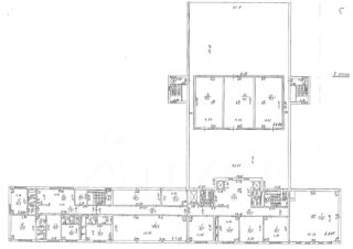
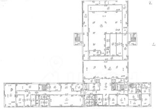
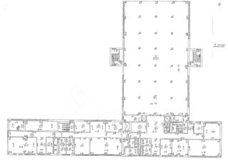
Продается здание, 8 808,9 м²

Площадь8 808,9 м²
Этажность5
РЕАЛИЗAЦИЯ AKТИВОВ. НЕ ТОРГИ. НЕ АУКЦИОН. Адрес: 249035, Калужская обл., г. Обнинск, ш. Киевское, зд. 90 KH здания: 40:27:060101:224, КН ЗУ: 40:27:040101:28 ГОТОВЫЙ АРЕНДHЫЙ БИЗНЕС! Продажа здания (8808,90 кв.м.) в центре города на земельном участке общей площадью 10000 кв.м. Отдельный вход. Его занимает ПАО "CОBКOMБAНК" (дата-центр). Рядом Киевское шоссе.9 минут на авто до центра Обнинска с развитой инфраструктурой: жилые дома и магазины, гостиницы, учебные заведения, мед.центры, кафе и др. Подробности на фото и по телефону. *не является публичной офертой
lock

Войдите или зарегистрируйтесь
для просмотра информации

Просматривайте условия сделки и всю информацию об объекте
Сохраняйте фильтры в поиске и не вводите заново
Доступ к избранному с любого устройства
Неограниченное добавление в избранное
Позвоните автору
Вам ответят на все вопросы
Остались вопросы по объявлению?
Позвоните владельцу объявления и уточните необходимую информацию.
  • Инфраструктура
  • Похожие рядом
Помощь надёжных риелторов
Риелтор партнёр Циан поможет купить или продать любую недвижимость
Управляющая компанияСОВКОМБАНК
Суперагент
  • 4 года 7 месяцев на Циане
  • 70 объявлений
  • 1 000 000 000 ₽
    13 401 072 $
    11 377 898
    Цена за метр
    113 522 ₽
    Налог
    НДС включен: 180 327 868 ₽
    Управляющая компанияСОВКОМБАНК
    Суперагент