Мы используем куки-файлы. Соглашение об использовании
Помещение свободного назначения, 828,5 м²

Продается помещение свободного назначения, 828,5 м²

Площадь828,5 м²
Этаж1 из 1
ПомещениеСвободно
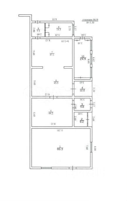
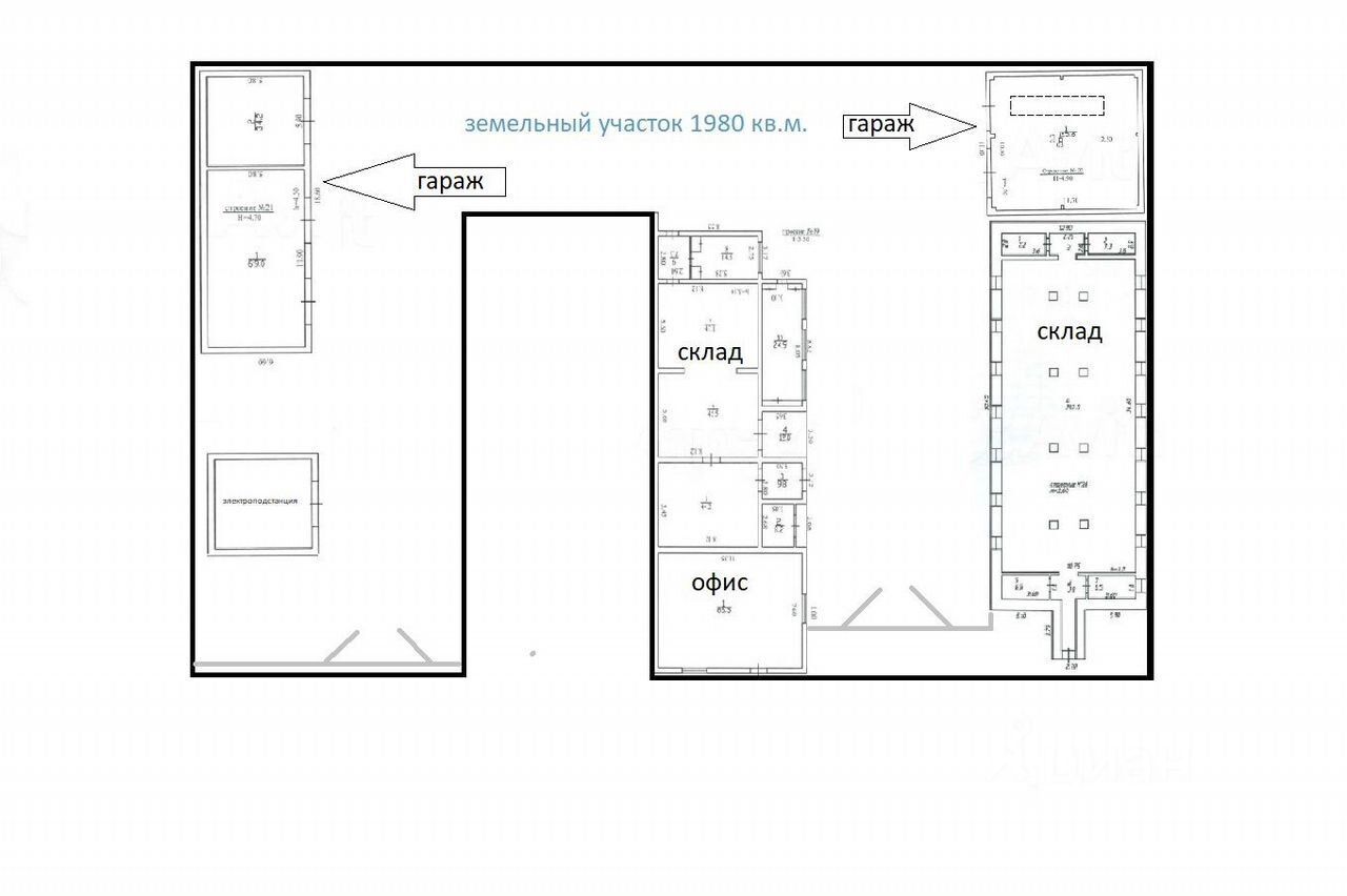
Продажа производственной базы на ул. Постовалова Во всех помещениях проведен свет. Газ, вода, канализация рядом. Преимущества объекта: большая площадь участка — есть место для расширения; высокие потолки — возможность размещения крупногабаритного оборудования; несколько ворот — удобный подъезд и разгрузка транспорта; гибкость использования — помещения подходят для разных видов деятельности. Подходит для: склада; производства; автосервиса; логистического центра; мастерской и т.д. Большая часть помещений сдано в аренду. На участке 1958 кв.м. расположены 4 здания: 1. Мастерские - Офисное-производственное помещение. Одноэтажное кирпичное здание капитального характера с ж/б перекрытиями. Высота потолков 3,3 м Площадь 299,8 кв.м. 2. Гараж на 3 бокса с высокими потолками. Одноэтажное кирпичное здание капитального характера с ж/б перекрытиями. Высота потолков 4,7 м Площадь 103,2 кв. м. 3. Гараж на 2 бокса. Одноэтажное кирпичное здание с ж/б перекрытиями. Высота потолков 4,9 м Площадь 125,6 кв.м. 4. Склад площадью 299,9 кв. м. Одноэтажное кирпичное здание. Высота потолков 3,6 м Участок имеет бетонное ограждение, двое ворот для въезда, асфальтовое покрытие. База может рассматриваться как для сдачи в аренду частями, так и полностью. Можно разместить автомастерские, использовать как склад или небольшое производство.
lock

Войдите или зарегистрируйтесь
для просмотра информации

Просматривайте условия сделки и всю информацию об объекте
Сохраняйте фильтры в поиске и не вводите заново
Доступ к избранному с любого устройства
Неограниченное добавление в избранное
Позвоните автору
Вам ответят на все вопросы
Остались вопросы по объявлению?
Позвоните владельцу объявления и уточните необходимую информацию.
  • Инфраструктура
  • Похожие рядом
  • Общая площадь828,5 м²
Естественная вентиляция
Помощь надёжных риелторов
Риелтор партнёр Циан поможет купить или продать любую недвижимость
Автор объявленияАндрей Новиков
Суперагент
  • 3 года 7 месяцев на Циане
  • 13 объявлений
  • 16 000 000 ₽
    210 379 $
    178 521
    Цена за метр
    19 313 ₽
    Налог
    УСН
    Автор объявленияАндрей Новиков
    Суперагент