


Хорошая цена
3 890 000 ₽
79 713 ₽/м²
3-к квартира в одном из лучших районов города - мкрн. Кубяка
комфортный 2 этаж из 5
имеется балкон
можно сразу заезжать и жить
отличная локация
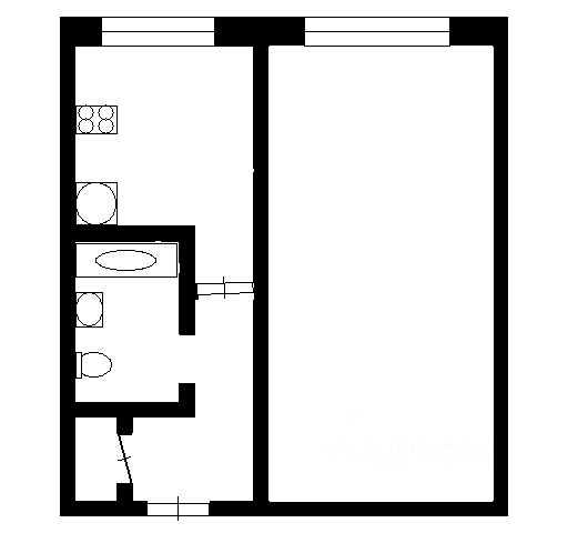
Общая площадь квартиры 48,8 кв.м + балкон. Здесь 3 комнаты (17,7 + 9,8 + 7,8 кв.м), раздельный санузел, кухня и прихожая. Такая планировка оптимально подойдет супружеской паре или молодой семье с 1 или 2 детьми.
Эта планировка идеальный кандидат на перепланировку в современный евроформат. Можно сделать просторную кухню-гостиную, где удобно готовить и принимать гостей, а 2 оставшиеся комнаты обустроить под родительскую и детскую комнаты или под спальню и рабочий кабинет. Можно даже гардеробную с окном сделать из маленькой комнаты. Сценариев - масса, выбор за вами.
Состояние квартиры полностью соответствует фото, можно сразу заезжать и жить. Везде ПВХ остекление. Сантехника и коммуникации в исправном состоянии.
Квартира находится в одном из лучших спальных районов города - мкрн. Кубяка. Здесь развитая инфраструктура, отличная транспортная доступность. В пешем доступе 2 детских садика, новая школа 46, поликлиника (детская и взрослая), мини-рынок, магазины, пункты выдачи OZON, WB, Яндекс, фитнес зал, ТЦ "Торговый квартал" в 5 минутах пешком.
Летом дворы утопают в зелени, поэтому если засыпать и просыпаться под пение птиц - это про вас, то рекомендуем присмотреться к нашей квартире.
Будем рады ответить на дополнительные вопросы в чате или по телефону, мы все обсудим и договоримся о просмотре.
Номер объекта: 23346.








































































