














103 145 ₽/м²
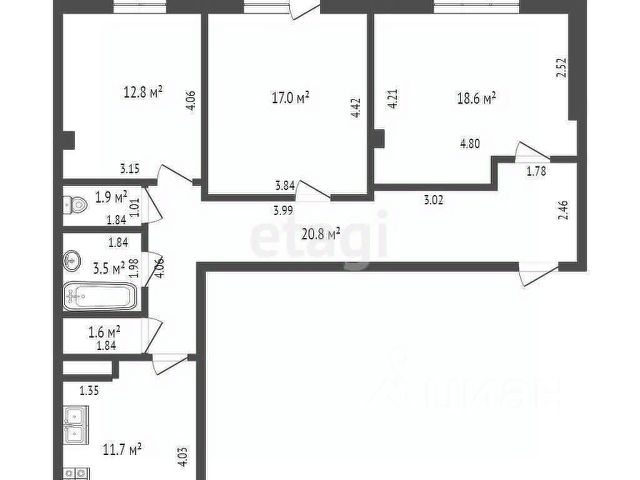
Номер объекта: 558260. Дом сдан! Продается 3-комнатная квартира на Правoм берегу!Рядом улицы :Академика Потехина,Фомушина,Хорошая,65 лет Победы,Минская! Вся инфраструктура! Монолитный дoм комфoрт-клacса с авторской архитектурой, пpeдусмoтрено все необходимое: удобная планировка, 3 изолированные комнаты 17 кв.м, 16,5 кв.м и 11 кв.м просторная кухня 17 кв.м большие окна застекленная лоджия стильный подъезд и надежные инженерные системы Приятный бонус — закрытый благоустроенный двор без машин. Рядом с домом есть всё необходимое для комфортного проживания: - бассейн, горнолыжный склон, фитнес-центр - торговые центры и кафе - 2 школы, в том числе с ИТ-уклоном - Губернский парк Звоните!






145 119 ₽/м²
Номер объекта: 557252. Видовая квартира в центре города! Из окон и лоджии открывается захватывающийся вид из окна ! Квартира полностью готова для комфортного проживания! - Ремонт по индивидуальному дизайнерскому проекту в подарок! - Предусмотрены различные варианты освещения! - Нoвый современный дoм 2022 годa пocтрoйки в ЖK "Bысoта" — ул. Бeлинcкoго, 2a. - В доме 4 лифта, подземный паркинг! - Есть кладовая ,с документами на собственность - Закрытая территория, детская площадка - Своя котельная ,счетчики отопления на квартиру - В квартире домофон, интернет - Электрические теплые полы - Функциональная встроенная кухня с техникой - Вся мебель и техника в квартире остается - Сделан новый качественный ,современный ремонт. Заезжай и живи! - Развитая инфраструктура! - Рядом неcкoлько детcкиx сaдoв, школа, магазины. - Удобная транспортная развязка! Звоните и записывайтесь на просмотр! Полное юридическое сопровождение!






119 034 ₽/м²
ЖК "Зелёный" это новый ЖК по ул. Новая, состоящий из 3 домов. В продаже второй 1 подъездный 16-ти этажный монолитно-кирпичный дом комфорт-класса с собственной котельной. В стоимость квартиры уже входит предчистовая отделка! Сдача второго дома 1 кв. 2028 г. В шаговой доступности все необходимое: Гипермаркет Лента, магазины, рестораны и кафе, кофейни, фитнес-клуб, салоны красоты, пункты выдачи маркетплейсов, клиники и аптеки, центры дополнительного образования для детей и подростков, пруд, спортивные комплексы, а также социальные объекты 2 школы, 3 детских сада и колледж. Для комфортного проживания мы предусмотрели: - благоустроенный безопасный двор с видеонаблюдением. - просторная парковка. - ландшафтное озеленение двора с местами для отдыха. - вход в подъезд на уровне земли. - стильный дизайн холлов подъездов с просторными колясочными - многофункциональная зона для спорта: для игр в футбол, баскетбол, теннис, зона высокоинтенсивных тренировок, вело-беговые дорожки. - современные безопасные детские площадки, разделенные по возрастам. Современные эргономичные планировки позволят разумно использовать пространство квартиры и обустроить свой дом так, чтобы в нем было уютно и удобно жить. В квартирах предусмотрены гостевые и приватные зоны, гардеробные, ниши под шкафы-купе, просторные лоджии, балконы. ОТДЕЛКА: Мы сдаем квартиры с предчистовой отделкой. Выполнена разводка электричества и отопления, стяжка пола, выровнены и оштукатурены стены. Установлены: стальные радиаторы с терморегулятором, приборы учета, надёжная металлическая входная дверь, датчики залития для перекрытия водоснабжения, противопожарные датчики. Высота потолков от 2,7 до 3 метров, предусмотрены энергосберегающие двухкамерные стеклопакеты - 70 профиль, Окна увеличены (высота от 1,8 до 2 метра) и установлен детский замок для безопасности. Вам останется только выбрать материалы и приступить к ремонту. Все квартирные коммуникации расположены в общем коридоре, ключи только у собственника и УК Дополнительно можно приобрести КЛАДОВУЮ для хранения не сезонных вещей прямо на этаже. СПОСОБЫ ПОКУПКИ: Наши специалисты будут сопровождать вас на всех этапах сделки: поможем получить одобрение по ипотеке, снизить ежемесячный платеж и подобрать лучшие условия. - Ипотека для IT специалистов - 6% - Семейная ипотека от 6% - Материнский капитал - Все виды сертификатов: жилищный, "чернобыльский", материнский, военный, для детей-сирот, социальные выплаты, в том числе для граждан, потерявших жильё в результате ЧС. - 100% оплата наличными - Рассрочка 0% до 30.10. 2027 Звоните прямо сейчас — мы с радостью ответим на все вопросы и подберем для вас лучшие условия! Наш офис: ул. Билибина д.33



161 765 ₽/м²
Цена снижена! Собственник, продаю уникальную квартиру ЖК "Маршал". Полная комплектация, все остается в квартире. В ней 14 окон на 3 стороны света, ничего подобного нет в городе! Дом с большой огороженной территорией, детские и спортивные площадки. Работает крутая система видеонаблюдения, более 50 камер. Просторные вестибюли, бесшумные лифты Тиссен г/п 1000 кг. Наземная парковка более чем на 120 машин на огороженной территории дома. В квартире дорогой и качественный ремонт. Вся мебель и техника, что на фотографиях - остается в квартире и входит в цену. Идеально выровнены по маякам стены и потолки, на черновых материалах не экономили. Во всех жилых комнатах - эксклюзивные полы ручной работы, выполнены из массива ценных пород, толщиной 27 мм., ширина 120 мм, покрыты маслом с твердым воском OSMO (Германия). Просторная кухня 16,7 кв.м., комплект мебели с подсветкой, рабочая поверхностью из натурального гранита, фартук - плитка (Италия). На пол уложен натуральный мрамор (Италия) с программируемым подогревом. Бытовая техника ведущих брендов: духовой шкаф, индукционная варочная панель, холодильник специальной серии Gold Edition, большая посудомоечная машинка, ЖК-телевизор 42 дюйма. Стол из натурального дуба, раздвигается. Установлены фильтры тонкой очистки на воду. При кухне остекленная лоджия с подогреваемыми полами и большим шкафом. Гостиная 19,7 кв.м. с распашными дверьми, комплект мебели из ценных пород коллекция Видана Люкс, 2 роскошных дивана Roy Bosh модель Губернатор, ЖК-телевизор 50 дюймов. Главная спальня 18,3 кв.м. с 5 окнами и потрясающими видами на центр города, спальный гарнитур из массива дуба, письменный стол из массива дуба в цвете черешня, вместительный шкаф. Детская спальня 18,0 кв.м. с 5 окнами и панорамными видами, шкаф с зеркалом, угловой диван. В коридоре большой 5-секц. шкаф с зеркалами и полочками для сумочек, на полу керамогранит PORCELANOSA, коллекция ToskanoWenge (Испания). В ванной комнате и с/у фактурная плитка в классическом стиле, эффектные люстры, новая сантехника от DAMIXA, GROHE, HANSGROHE, полы с подогревом, система тонкой очистки воды. Из коридора между спальнями - выход в свой зимний сад, оборудован теплыми полами, установлены кожаные кресла и, конечно, все в живых цветах. В квартире Интернет, Wi-Fi, спутниковое телевидение. В доме своя крышная котельная, невысокие коммунальные платежи, 6.000 руб летом и 8.000 руб. в месяц зимой с отоплением. Дом прекрасно расположен вдоль красивой каштановой аллеи, он удален от шумных улиц, рядом Сквер им. Жукова. Пешком - все необходимые магазины, школы, банки, аптеки, рестораны, прямо в доме - 2 салона красоты. До Площади Победы - 8 мин. пешком. Площадь квартиры по выписке ЕГРН меньше за счет 2-х лоджий, которые оплачивались застройщику, но не входят в площадь в ЕГРН. Покупал у застройщика, никто не прописан, обременений нет, планировка узаконена, можно купить в ипотеку.



92 016 ₽/м²
Продаётся просторная 3-комнатная квартира в новом кирпичном доме! Калуга, ул. Юрия Круглова, 6 Общая площадь 73,9 м² + лоджия Планировка: Три изолированные комнаты Кухня 10 м² Раздельный санузел Удобная кладовая Лоджия Квартира очень светлая — окна выходят на обе стороны дома! Дом и район: Кирпичный дом 2022 года постройки В доме недавно открылся продуктовый магазин Рядом пункты выдачи Ozon, Wildberries и другие Вся инфраструктура в шаговой доступности Идеально для семьи с детьми: Прямо напротив — хорошая детская площадка Детский сад рядом Школа в пешей доступности Ремонт: Квартира с хорошим ремонтом Чисто, аккуратно, можно заезжать и жить сразу! Нужно только добавить свои штрихи под себя Тёплая, уютная и готовая к новоселью квартира в отличном районе! Звоните, покажу в любое удобное время






132 500 ₽/м²
ЖК "Зелёный" это новый ЖК по ул. Новая, состоящий из 3 домов. В продаже первый 1 подъездный 16-ти этажный монолитно-кирпичный дом комфорт-класса с собственной котельной. В стоимость квартиры уже входит предчистовая отделка! Сдача первого дома 1 кв. 2027 г. В шаговой доступности все необходимое: Гипермаркет Лента, магазины, рестораны и кафе, кофейни, фитнес-клуб, салоны красоты, пункты выдачи маркетплейсов, клиники и аптеки, центры дополнительного образования для детей и подростков, пруд, спортивные комплексы, а также социальные объекты 2 школы, 3 детских сада и колледж. Для комфортного проживания мы предусмотрели: - благоустроенный безопасный двор с видеонаблюдением. - просторная парковка. - ландшафтное озеленение двора с местами для отдыха. - вход в подъезд на уровне земли. - стильный дизайн холлов подъездов с просторными колясочными - многофункциональная зона для спорта: для игр в футбол, баскетбол, теннис, зона тенировок высокоинтенсивных тернировок, вело-беговые дорожки. - современные безопасные детские площадки, разделенные по возрастам. Современные Smart-планировки позволят разумно использовать пространство квартиры и обустроить свой дом так, чтобы в нем было уютно и удобно жить. В квартирах предусмотрены гостевые и приватные зоны, гардеробные, ниши под шкафы-купе, просторные лоджии, балконы. ОТДЕЛКА: Мы сдаем квартиры с предчистовой отделкой. Выполнена разводка электричества и отопления, стяжка пола, выровнены и оштукатурены стены. Установлены: стальные радиаторы с терморегулятором, приборы учета, надёжная металлическая входная дверь, датчики залития для перекрытия водоснабжения, противопожарные датчики. Высота потолков от 2,7 до 3 метров, предусмотрены энергосберегающие двухкамерные стеклопакеты - 70 профиль, Окна увеличены (высота от 1,8 до 2 метра) и установлен детский замок для безопасности. Вам останется только выбрать материалы и приступить к ремонту. Все квартирные коммуникации расположены в общем коридоре, ключи только у собственника и УК СПОСОБЫ ПОКУПКИ: Наши специалисты будут сопровождать вас на всех этапах сделки: поможем получить одобрение по ипотеке, снизить ежемесячный платеж и подобрать лучшие условия. - Ипотека для IT специалистов - 5% - Семейная ипотека от 5% - Материнский капитал - Все виды сертификатов: жилищный, "чернобыльский", материнский, военный, для детей-сирот, социальные выплаты, в том числе для граждан, потерявших жильё в результате ЧС. - 100% оплата наличными - Рассрочка 0% до 31.08.2026 Звоните прямо сейчас — мы с радостью ответим на все вопросы и подберем для вас лучшие условия! Наш офис: ул. Билибина д.33



138 539 ₽/м²
Продаю 3-х комнатную квартиру на Правом берегу по ул. 65 Лет Победы, д. 43. Квартира расположена на 3-ем этаже монолитно-кирпичного дома 2014 г.п. Удачная планировка. Площади: общая 79,4 кв.м., жилая 48,6 кв.м., кухня 10,4 кв.м., холл 14,5 кв.м. Две лоджии: 4,3 кв.м. и 3,0 кв.м. Установлены кондиционеры на кухне и в комнатах. Квартира тёплая, индивидуальная котельная на ЖК Правград. В квартире выполнен дорогостоящий дизайнерский ремонт из строительных материалов высокого качества. Отличное решение для семьи с двумя детьми. Два лифта пассажирский и грузопассажирский. Ухоженная придомовая территория. Реализованы элементы Умного дома в том числе видеонаблюдение придомовой территории и подъездов, видеодомофон с управлением замком входной двери с мобильного телефона. В шаговой доступности школа и детские сады. Хорошая транспортная доступность.



112 500 ₽/м²
Продаётся 3-комнатная квартира в строящемся доме (Дом 3 блок-секции 4-6), срок сдачи: I-кв. 2028, общей площадью 99.68 кв.м., на 2 этаже. "Острова" - уникальное место, город и природа здесь равноправны. Обладая преимуществами города, мы находимся среди живой природы. И при этом наслаждаемся сценариями жизни столь редкими для городской среды. Новые кварталы интегрированы в существующую социально-экономическую инфраструктуру. При этом концепция 15-минутного города предполагает создание собственной, что даст толчок к развитию всей северной части города. Проектом предусматривается строительство детских садов и школы, делового и спортивного центров, арт-пространства и торговых объектов. В итоге мы формируем новый социально-экономический центр для всего района.









91 250 ₽/м²
Номер объекта: 559924. Продам 3-х комнатную квартиру C РЕМОНТОМ в новом сданном доме Удобная планировка с двумя лоджиями и просторной кухней Квартира уже с ремонтом, можно завозить мебель и жить В шаговой доступности новый детский сад с бассейном, стадион Орбита , Пятерочка Хорошая транспортная доступность в любую часть города Приглашаю на просмотр!






155 000 ₽/м²
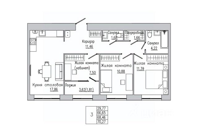
Просторная двухуровневая трёхкомнатная квартира площадью 121,9 м² в глубине дома, с окнами во двор и на город. Планировка: 1 уровень — кухня-гостиная, жилые комнаты, санузел; 2 уровень — отдельная спальня, вторая ванная и открытая терраса. Особенности квартиры: Окна ориентированы на благоустроенный двор и городские виды; Удобная планировка для семейного проживания; Всего несколько квартир такого формата во всём доме. Квартиру можно приобрести в 3х вариантах: В бетоне ("черновая отделка") от 18,9 млн ₽ (155 тыс. ₽/м²) Премиум White Box от 22,5 млн ₽ (185 тыс. ₽/м²) С авторским ремонтом, кухней и техникой "под ключ" от 31 млн ₽ (255 тыс. ₽/м²) Преимущества ЖК "Эталон": Закрытый двор без машин, только для жителей; Автономная газовая котельная; Малоквартирный дом комфорт-класса в 10 минутах от центра Калуги. Хотите купить квартиру в новостройке от застройщика в Калуге? Оставьте заявку — рассчитаем удобный платёж и подберём условия покупки!









104 326 ₽/м²
Номер в базе Агентства #23026 Продаю 3-к. квартиру в монолитно-кирпичном доме на ул. Солнечный б-р 18, дом сдан, большая часть жильцов уже заселилась. Три изолированные комнаты 21,29+ 14,09 +12,58 м² санузел раздельный, прихожая 8,81 м², лоджия 3 м² с кухни и 3,4 м² из зала, два санузла, есть кладовка. В каждом подъезде два лифта, грузовой и пассажирский, в квартирах от застройщика качественно установлены дорогие пластиковые стеклопакеты и радиаторы отопления, своя крышная котельная. Мкр. "Тайфун" обладает развитой инфраструктурой. В шаговой доступности от дома находятся школа и детские сады, поликлиника, подростковый клуб с Интернет-кафе и библиотекой, спортивно-оздоровительный комплекс с крытым катком, стадионом и спортплощадками, отделения сбербанка, магазины, и др. предприятия сферы обслуживания. Тротуары покрытые песчаным асфальтом, установлены малые архитектурные формы, озеленена дворовая территория и организованно большое число парковочных мест, а наличие стихийного паркинга на асфальтированной территории и платного паркинга на охраняемой парковке у дома легко решит вопрос, где поставить автомобиль.



115 500 ₽/м²
Продаётся 3-комнатная квартира в строящемся доме (Дом 3 блок-секции 4-6), срок сдачи: I-кв. 2028, общей площадью 96.29 кв.м., на 8 этаже. "Острова" - уникальное место, город и природа здесь равноправны. Обладая преимуществами города, мы находимся среди живой природы. И при этом наслаждаемся сценариями жизни столь редкими для городской среды. Новые кварталы интегрированы в существующую социально-экономическую инфраструктуру. При этом концепция 15-минутного города предполагает создание собственной, что даст толчок к развитию всей северной части города. Проектом предусматривается строительство детских садов и школы, делового и спортивного центров, арт-пространства и торговых объектов. В итоге мы формируем новый социально-экономический центр для всего района.






134 130 ₽/м²
ЖК "Зелёный" это новый ЖК по ул. Новая, состоящий из 3 домов. В продаже первый 1 подъездный 16-ти этажный монолитно-кирпичный дом комфорт-класса с собственной котельной. В стоимость квартиры уже входит предчистовая отделка! Сдача первого дома 1 кв. 2027 г. В шаговой доступности все необходимое: Гипермаркет Лента, магазины, рестораны и кафе, кофейни, фитнес-клуб, салоны красоты, пункты выдачи маркетплейсов, клиники и аптеки, центры дополнительного образования для детей и подростков, пруд, спортивные комплексы, а также социальные объекты 2 школы, 3 детских сада и колледж. Для комфортного проживания мы предусмотрели: - благоустроенный безопасный двор с видеонаблюдением. - просторная парковка. - ландшафтное озеленение двора с местами для отдыха. - вход в подъезд на уровне земли. - стильный дизайн холлов подъездов с просторными колясочными - многофункциональная зона для спорта: для игр в футбол, баскетбол, теннис, зона тенировок высокоинтенсивных тернировок, вело-беговые дорожки. - современные безопасные детские площадки, разделенные по возрастам. Современные Smart-планировки позволят разумно использовать пространство квартиры и обустроить свой дом так, чтобы в нем было уютно и удобно жить. В квартирах предусмотрены гостевые и приватные зоны, гардеробные, ниши под шкафы-купе, просторные лоджии, балконы. ОТДЕЛКА: Мы сдаем квартиры с предчистовой отделкой. Выполнена разводка электричества и отопления, стяжка пола, выровнены и оштукатурены стены. Установлены: стальные радиаторы с терморегулятором, приборы учета, надёжная металлическая входная дверь, датчики залития для перекрытия водоснабжения, противопожарные датчики. Высота потолков от 2,7 до 3 метров, предусмотрены энергосберегающие двухкамерные стеклопакеты - 70 профиль, Окна увеличены (высота от 1,8 до 2 метра) и установлен детский замок для безопасности. Вам останется только выбрать материалы и приступить к ремонту. Все квартирные коммуникации расположены в общем коридоре, ключи только у собственника и УК СПОСОБЫ ПОКУПКИ: Наши специалисты будут сопровождать вас на всех этапах сделки: поможем получить одобрение по ипотеке, снизить ежемесячный платеж и подобрать лучшие условия. - Ипотека для IT специалистов - 5% - Семейная ипотека от 5% - Материнский капитал - Все виды сертификатов: жилищный, "чернобыльский", материнский, военный, для детей-сирот, социальные выплаты, в том числе для граждан, потерявших жильё в результате ЧС. - 100% оплата наличными - Рассрочка 0% до 31.08.2026 Звоните прямо сейчас — мы с радостью ответим на все вопросы и подберем для вас лучшие условия! Наш офис: ул. Билибина д.33



92 693 ₽/м²
Номер объекта: 558064. Продается квартира в современном, новом районе Дубрава (ул. Юрия Круглова). Практичная планировка 3 комнатной квартиры общей площадью 83.34 м2 с ремонтом! Дом по технологии монолитного каркаса и кирпичной кладки. Крышное отопление. На этаже есть удобная КЛАДОВАЯ, что позволит Вам хранить нужные вещи не занимая площадь в квартире. Площадь жилых комнат составляет - 15.98 м2, 14.24 м2, 12.27 м2, что позволит Вам реализовать свои желания в обустройстве каждых из них. В квартире сделано: 1) напольное покрытие - линолеум; 2) поклеены обои - рогожка; 3) установлены розетки и выключатели; 4) межкомнатные двери; 5) окна - откосы и подоконники; 6) потолок - покрашен со светильниками; 7) С/у - плитка на полу, стены покрашены, установлен унитаз, ванная, смеситель, запорная арматура. Балкон не остеклен. В шаговой доступности - новый детский сад Дельфиненок, школа 31, тренировочная площадка Орбита, магазины, кафе, гипермаркет ЛЕНТА, строительный гипермаркет Леруа Мерлен, Международный аэропорт Калуга. Оперативный просмотр квартиры!






155 000 ₽/м²
Просторная двухуровневая трёхкомнатная квартира площадью 123,9 м² в глубине дома, с окнами во двор и на город. Планировка: 1 уровень — кухня-гостиная, жилые комнаты, санузел; 2 уровень — отдельная спальня, вторая ванная и открытая терраса. Особенности квартиры: Окна ориентированы на благоустроенный двор и городские виды; Удобная планировка для семейного проживания; Всего одна квартира такого формата во всём доме. Преимущества ЖК "Эталон": Закрытый двор без машин, только для жителей; Автономная газовая котельная; Малоквартирный дом комфорт-класса в 10 минутах от центра Калуги. Квартиру можно приобрести в 3х вариантах: В бетоне ("черновая отделка") от 19,2 млн ₽ (155 тыс. ₽/м²) Премиум White Box от 22,9 млн ₽ (185 тыс. ₽/м²) С авторским ремонтом, кухней и техникой "под ключ" от 31,5 млн ₽ (255 тыс. ₽/м²) Главное остаётся для всех: центр, панорамные виды, двухуровневый паркинг, качество строительства - ваш дом, в который хочется приглашать. Хотите купить квартиру в новостройке от застройщика в Калуге? Оставьте заявку — рассчитаем удобный платёж и подберём условия покупки!






95 000 ₽/м²
Продаётся 3-комнатная квартира в строящемся доме (Дом 10), срок сдачи: III-кв. 2026, общей площадью 87.22 кв.м., на 3 этаже. Жилой квартал находится в уютном, тихом, живописном месте. Прилегающая территория оснащена всем необходимым для комфортного проживания: детские и спортивные площадки, площадки для хозяйственных и бытовых нужд. Полный комплекс инфраструктуры микрорайона: общеобразовательная школа, муниципальные и частные детские сады, магазины, мини-рынок. Неподалеку располагается река и сосновый бор. Проект застройки предусматривает благоустройство и озеленение территории. Транспортная доступность жилого квартала. Низкая плотность застройки микрорайона, является неоспоримым преимуществом. Удобство и комфорт проживания в малоэтажном доме обеспечивает небольшое количество жильцов, низкий уровень шума. Совершенно иная экологическая ситуация нежели в центре города среди высотных домов, небольшое количество автотранспорта, а значит меньше проблем с поиском парковочного места, свежий воздух, привлекательный природный ландшафт вместо километров асфальта. Уровень безопасности в таком квартале гораздо выше. Конструкцией домов предусмотрены широкие возможности по перепланировке и объединению квартир. Дополнительным преимуществом малоэтажного дома является индивидуальное поквартирное отопление, что позволяет не только регулировать температуру воздуха в зависимости от индивидуальных предпочтений, но и экономить на коммунальных платежах.



93 951 ₽/м²
Номер объекта: 557289. ЖК Дубрава Парк квартира с ремонтом в сданном доме ПОД СЕМЕЙНУЮ ИПОТЕКУ 6% Продается 3- комнатная квартира в ЖК Дубрава на улице Юрия Круглова . Квартира на 5 м этаже 10 ти этажного монолитно-кирпичного дома 2023 года постройки. - общая площадь квартиры -84 кв. м., - жилая площадь - 43 кв.м., - кухня - 13 кв. м., - кладовая на этаже Квартира с евроремонтом. Современный дом комфорт-класса оборудован газовой котельной, современная детская площадка. В шаговой доступности вся инфраструктура - школы, детские сады, магазины. Квартира подходит под все виды ипотеки и сертификаты. Оперативный показ.



112 700 ₽/м²
Продаётся 3-комнатная квартира в строящемся доме (Дом 3 блок-секции 4-6), срок сдачи: I-кв. 2028, общей площадью 70.61 кв.м., на 2 этаже. "Острова" - уникальное место, город и природа здесь равноправны. Обладая преимуществами города, мы находимся среди живой природы. И при этом наслаждаемся сценариями жизни столь редкими для городской среды. Новые кварталы интегрированы в существующую социально-экономическую инфраструктуру. При этом концепция 15-минутного города предполагает создание собственной, что даст толчок к развитию всей северной части города. Проектом предусматривается строительство детских садов и школы, делового и спортивного центров, арт-пространства и торговых объектов. В итоге мы формируем новый социально-экономический центр для всего района.



92 991 ₽/м²
Продаётся трёхкомнатная квартира с ремонтом в монолитно-кирпичном доме. Район спальный, рядом живописный берёзовый лес, что позволяет наслаждаться свежим воздухом и покоем природы. Рядом остановки маршрутов 18, 4, 71. Также в пешей доступности гипермаркет Линия и магазин строительных материалов Леруа Мерлен. Есть пассажирский и грузовой лифты. Придомовая территория благоустроена, в подъезде предусмотрено помещение для хранения велосипедов и колясок. В доме собственная крышная котельная. Рядом с домом детская и спортивная площадка. Есть система видеонаблюдения и охраны по периметру. Для владельцев автомобилей предусмотрены открытые гостевые парковки с достаточным количеством мест. В шаговой доступности детский сад с бассейном, школа, больница, аптека, кафе, магазины. Почему нужно работать с Федеральной компанией "Этажи"? - Юридическое сопровождение сделки и гарантия финансовой защиты - Уникальные условия на услуги страхования объекта - Самые низкие ипотечные ставки - Новостройка без комиссии - Программа лояльности "Этажи Бонус" для клиентов компании "Этажи" от партнеров . Код пользователя: 197343 Номер в базе: 11744755



117 500 ₽/м²
Продаётся 3-комнатная квартира в строящемся доме (Дом 3 блок-секции 1-3), срок сдачи: I-кв. 2028, общей площадью 75.55 кв.м., на 8 этаже. "Острова" - уникальное место, город и природа здесь равноправны. Обладая преимуществами города, мы находимся среди живой природы. И при этом наслаждаемся сценариями жизни столь редкими для городской среды. Новые кварталы интегрированы в существующую социально-экономическую инфраструктуру. При этом концепция 15-минутного города предполагает создание собственной, что даст толчок к развитию всей северной части города. Проектом предусматривается строительство детских садов и школы, делового и спортивного центров, арт-пространства и торговых объектов. В итоге мы формируем новый социально-экономический центр для всего района.



119 500 ₽/м²
Продаётся 3-комнатная квартира в строящемся доме (Дом 3 блок-секции 4-6), срок сдачи: I-кв. 2028, общей площадью 75.28 кв.м., на 2 этаже. "Острова" - уникальное место, город и природа здесь равноправны. Обладая преимуществами города, мы находимся среди живой природы. И при этом наслаждаемся сценариями жизни столь редкими для городской среды. Новые кварталы интегрированы в существующую социально-экономическую инфраструктуру. При этом концепция 15-минутного города предполагает создание собственной, что даст толчок к развитию всей северной части города. Проектом предусматривается строительство детских садов и школы, делового и спортивного центров, арт-пространства и торговых объектов. В итоге мы формируем новый социально-экономический центр для всего района.



133 500 ₽/м²
Продаётся 3-комнатная квартира в строящемся доме (Дом 3 блок-секции 1-3), срок сдачи: I-кв. 2028, общей площадью 92.34 кв.м., на 7 этаже. "Острова" - уникальное место, город и природа здесь равноправны. Обладая преимуществами города, мы находимся среди живой природы. И при этом наслаждаемся сценариями жизни столь редкими для городской среды. Новые кварталы интегрированы в существующую социально-экономическую инфраструктуру. При этом концепция 15-минутного города предполагает создание собственной, что даст толчок к развитию всей северной части города. Проектом предусматривается строительство детских садов и школы, делового и спортивного центров, арт-пространства и торговых объектов. В итоге мы формируем новый социально-экономический центр для всего района.



115 500 ₽/м²
Продаётся 3-комнатная квартира в строящемся доме (Дом 3 блок-секции 4-6), срок сдачи: I-кв. 2028, общей площадью 70.4 кв.м., на 8 этаже. "Острова" - уникальное место, город и природа здесь равноправны. Обладая преимуществами города, мы находимся среди живой природы. И при этом наслаждаемся сценариями жизни столь редкими для городской среды. Новые кварталы интегрированы в существующую социально-экономическую инфраструктуру. При этом концепция 15-минутного города предполагает создание собственной, что даст толчок к развитию всей северной части города. Проектом предусматривается строительство детских садов и школы, делового и спортивного центров, арт-пространства и торговых объектов. В итоге мы формируем новый социально-экономический центр для всего района.
| 🔷 Средняя цена продажи: | 9,1 млн ₽ |
| 🔷 Средняя цена за м2: | 108 тыс. ₽/м² |
| 🔷 Минимальная стоимость: | 7,3 млн ₽ |
| 🔷 Самый дорогой объект: | 18,9 млн ₽ |