Сдается уютная двухкомнатная квартира с евроремонтом на 14-м этаже 17-этажного панельного дома, построенного в 2011 году. Общая площадь составляет 60 кв. м, из которых 31 кв. м — жилая, а кухня занимает 12 кв. м. Высота потолков — 2.75 метра, что создает ощущение простора. Из окон открывается вид на улицу и во двор. На кухне и в комнате есть мебель, поэтому можно сразу заселяться без лишних хлопот. В наличии вся необходимая техника: холодильник, посудомоечная и стиральная машины, телевизор. Санузел оборудован ванной. Дом находится в хорошем состоянии и оборудован двумя лифтами — пассажирским и грузовым. Локация квартиры очень удобная: рядом находятся школы, детские сады, клиники и магазины, поэтому все необходимые услуги и товары всегда под рукой. Хорошая транспортная доступность позволяет быстро добраться до любой части города. Условия аренды: собственник готов обсудить все детали договора. Возможна аренда по долгосрочному договору, без обременений и комиссий. Залог и предоплата обсуждаются индивидуально. Квартира идеально подходит для пары или семьи с одним ребенком. Приглашаем вас на просмотр этой замечательной квартиры! Звоните и записывайтесь на удобное для вас время. 2-комнатная квартира (с фото) от собственника в Калуге на длительный срок
Аренда 2-комнатных квартир без посредников в Калуге
Объявление актуально. Сдаётся двухкомнатная квартира площадью 47,8 кв. м на первом этаже трёхэтажного кирпичного дома, построенного в 2015 году. Жилая площадь составляет 30 кв. м, кухня — просторная, 11 кв. м, Окна выходят на лес. На окнах жалюзи. Квартира с косметическим ремонтом В наличии мебель на кухне и в комнате, поэтому можно сразу заехать и жить. Из техники предусмотрены холодильник и стиральная машина. Ванная комната оборудована ванной, совмещённый санузел. Дом находится в хорошем состоянии и оборудован наземной парковкой, поэтому, а значит, у вас всегда будет место для автомобиля. В шаговой доступности расположены школы и детские сады, что удобно для семей с детьми. Также поблизости есть магазины, где можно купить всё необходимое для комфортной жизни. Условия аренды: договор напрямую с собственником, без комиссии. Оплата за первый и последний месяц проживания. Квартира сдаётся для проживания не более четырёх человек. Приглашаю вас на просмотр. Записывайтесь на удобное для вас время. ----- Примечание: у собственника могут быть дополнительные пожелания к жильцам - обсудите их в чате или по телефону 2-комнатная квартира от хозяина в Калуге, частное объявление
Сдаётся на длительный срок 2-комнатная квартира в районе Площади Московской! Вся инфраструктура: школы, д/сады, больницы и поликлиники, спорткомплекс и бассейн, фитнес - центры, кафе и рестораны, салоны красоты, торговые центры, гипермаркеты, остановки общественного транспорта - всё в шаговой доступности. Квартира расположена на 5 этаже 5 - этажного дома, не угловая, тёплая. Общая площадь - 45кв.м. Хороший косметический ремонт, мебель и техника в отличном состоянии. Комнаты изолированные, балкон остеклен. Интернет. Вывод для кондиционера. Квартира полностью оснащена всем необходимым для комфортного проживания. Коммунальные услуги оплачиваются отдельно. Просмотры ежедневно после 16ч. АГЕНТАМ ПРОСЬБА НЕ БЕСПОКОИТЬ! Снять 2-комнатную квартиру без агентов в Калуге (частник)
Квартира в жилом состоянии, есть всё необходимое, рядом школа, детская и взрослая поликлиника, больница, вся необходимая инфраструктура и остановки общественного транспорта
Квартира с удобствами, мебелью и техникой на длительный срок. Рядом ТЦ "Торговый квартал", две новые школы, детский сад. Индивидуальные условия оплаты: косметический ремонт в счёт арендной платы до апреля 2026 года включительно.
Полностью мебелированная! Сдам 2 комнатную квартиру на длительный срок в Кошелеве. Холодильник, стиральная машина, микроволновка,телевизор, диван, кровать, шкаф, комод. С отличным ремонтом. Индивидуальное отопление, малые коммунальные платежи! Общая площадь 56,1 : Кухня 11 Обе комнаты по 15 Коридор 11, 7 метров в длину Туалет и ванна раздельные. Квартира распошонка на 2 стороны, одна выходит на школу, другая во двор. Дом находится в 3 очереди мкр. Кошелев, около школы и площади. Рядом расположена вся инфраструктура для комфортной жизни. Аренда 2-комнатной квартиры в Калуге недорого без комиссии (с фото)
Заселиться можно будет только после 28 января -Я собственник, аренда без комиссии -Квартира сдается только на длительный срок проживания -С животными нельзя -С детьми нельзя -Оплата сразу за первый и последний месяц проживания -есть вайфай -доступная инфраструктура рядом: детский сад, школа, парикмахерская, магнит, пятерочка, учебное заведение РАНХИГС (находится в этом же здании), военкомат, пункты выдачи озон, вайлдберисс и яндекс маркет,аптека, автобусная остановка
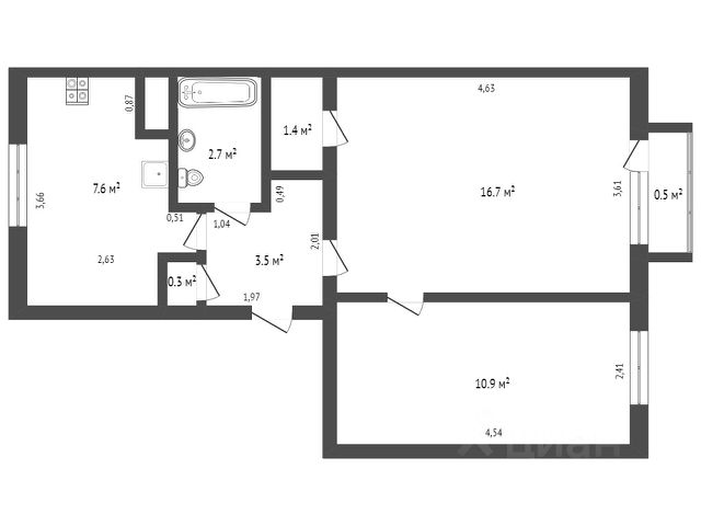
возможно заселение рабочих.до 4 х человек.,можно с животными, .стоимость для реальных квартиросъёмщиков при заселении 17000т.р. + 7000 залог, последующие месяцы 24000 всё включено.по договорености можно приобрести стиральную машину ( малютке) Сдаётся уютная 2-комнатная квартира в Калуге, на Пролетарской улице, 118. Общая площадь — 45,1 кв. м, жилая — 30 кв. м, кухня — 6,1 кв. м. Квартира расположена на 4 этаже 5-этажного панельного дома 1980 года постройки. Высота потолков — 2,5 метра. Окна выходят во двор, что обеспечивает тишину и уют. В квартире есть всё необходимое для комфортного проживания: косметический ремонт, мебель в комнате, холодильник и телевизор. Планировка включает в себя отдельный санузел и балкон. Ванная комната оборудована ванной, поэтому можно расслабиться после насыщенного дня. Дом в хорошем состоянии, для автовладельцев предусмотрена наземная парковка. Район тихий и спокойный, идеален для семейного проживания. В шаговой доступности находятся все необходимые объекты инфраструктуры: школы, детские сады, клиники и магазины. Отличная транспортная доступность позволяет быстро добраться до любого района города. Условия аренды: договор аренды напрямую с собственником. Возможен заезд в любое удобное для вас время. Без комиссии агентству, что избавляет от лишних затрат. Подходит для проживания семьи или пары. Приглашаем вас на просмотр квартиры. Звоните и записывайтесь на удобное время! Сдаю 2-комнатную квартиру без посредников (частник)
Сдается квартира на длительный срок. 35 тыс + КУ ( летом тыс 5-6. Зимой 12-15) Рядом детские сады (Белочка, Огонек, Веселые нотки, Солнечный зайчик). Школа 22, 10. Транспорт - 73 маршрут или остановка на ул Чапаева, пара минут пешком. Аптеки, поликлиники рядом. Из техники: 2 кондиционера, телевизор, микроволновка, роутер, стиралка, холодильник, варочная панель, духовка. Можно поднять сеть интернет до 500мб\с Сушилка настенная + сушилка лиана на балконе. В квартире только электричество, газа нет. Отопление в доме - ИТП. Коммуникации центральные все. 1 пассажирский лифт, 1 грузовой. Вход по ключу от домофона. 15 Этаж. Квартира не угловая. Снять 2-комнатную квартиру без посредников от хозяина в Калуге (недорого)
Сдается с 26 числа большая двушка с индивидуальным отоплением
Сдается просторная двухкомнатная квартира на 10 этаже 10 этажного дома. Имеется вся необходимая мебель и техника. Из техники есть телевизор, стиральная машина, посудомоечная машина, холодильник. В подъезде 2 лифта, грузовой и пассажирский. Рядом магазины Магнит и Диски+Т.Ц, достаточно места на парковке. . Без маленьких детей. Оплата 30 000р/мес+К.У, Залог 100%. Собственник. Звонить после 13-00. ----- Примечание: у собственника могут быть дополнительные пожелания к жильцам - обсудите их в чате или по телефону
Сдаётся на длительный срок 2-х комнатная квартира в кирпичном доме. В шаговой доступности школа 12, детский сад "Огонёк", "Аленький цветочек". центр развития "Созвездие", спорт комплекс "Юбилейный", остановки, почта, магазины. В квартире: мебель, кухонный гарнитур, холодильник, телевизор, стиральная машина. Одна комната в квартире практически пустая, что даёт возможность поставить свою мебель. Горячая вода- колонка. Квартира чистая, после косметического ремонта. Сдается платежеспособным людям без животных. Курить можно только на лоджии. Оплата 20000 руб. в месяц + к/у. Залог 10000 руб. ----- Примечание: у собственника могут быть дополнительные пожелания к жильцам - обсудите их в чате или по телефону
Сдаётся 2-х комнатная квартира на длительный срок.Свежий ремонт, мебель и техника новые, ИНДИВИДУАЛЬНОЕ отопление.Кухонная плита, духовой шкаф, кондиционер в каждой комнате, стиральная машинка, диван со спальным местом, двухспальная кровать, встроенный холодильник и посудомоечная машинка.Рядом школа и детские сады, парковка.Квартира сдаётся платёжеспособным жильцам, можно с детьми. Обязательства сохранности имущества и общий порядок.Договор аренды. Цена 50.000+коммуналка+залог (1 мес.)
Собственник!!! В зависимости от кол-ва проживающих и срокаторг! Эксклюзивное предложение. Единственная 2-х комнатная квартира в Калуге с позитивными дизайнерскими решениями (скандинавский стиль, loft, эко-дизайн). 5/6 этаж. Общая площадь 91 м2. Тихий центр ул. Поле Свободы, д. 129. Новый кирпичный дом. Закрытая территория. Одна квартира на этаже. С видом на зеленый сквер Воронина. Панорамное остекление. Индивидуальное отопление тепло всегда, в том числе и в межсезонье, когда в обычных квартирах отключают отопление. Горячая вода летом, когда у всех отключают на 2 недели. Межквартирные стены 60 см, уличные 80 см. Квартира только после ремонта. Два телевизора: на кухне и в гостиной (диагональ 1,5 метра), интернет WiFi, домашний 3D кинотеатр (3 пары очков) с мощными колонками, велотренажер, микроволновка, чайник, холодильник LG с системой NoFrost, стиральная машина Bosh, пылесос-циклон LG, мультиварка, пароварка. - Приветствуется участие агентств. По запросу вышлю качественные фото и их больше. - Звоните с 9-00 до 22-00 без выходных.
Центр города. Рядом Театр, ТРЦ Рио. Сдаётся уютная 2-комнатная квартира в Калуге на улице Огарёва, 40к2. По факту это трёшка, только одна комната проходная. Общая площадь квартиры составляет 62 кв. м. 2-ой этаж 9-этажного кирпичного дома. Квартира идеально подойдёт для комфортного проживания семьи или пары. Рассматриваю варианты на короткий срок (1,2,3,4,5 месяцев), тогда стоимость аренды больше: например 1мес - 60 тыс. Цена договорная, зависит от срока и количества проживающих. Можно рассматривать договор с юрлицом. У нас ИП, оплачиваются все налоги. В квартире косметический ремонт, она полностью готова к заселению. Есть всё необходимое для удобной жизни: кондиционер, холодильник, телевизор и стиральная машина. Кухня площадью 8 кв. м оснащена мебелью и бытовой техникой. В комнатах также есть мебель. Санузел совмещённый, оборудован ванной и бидэ. Две лоджии. Окна выходят на улицу и во двор. Подключён интернет. Удобное транспортное сообщение позволит вам быстро добраться до любой точки города. Аренда от собственника, без комиссии. Заключается договор аренды. Залог обсуждается при встрече.
Квартира расположена в центре Калуги. Отличная инфраструктура, в шаговой доступности магазины и торговые центры, при этом дом расположен в спальном районе.
Продаю светлую и тёплую двухкомнатную квартиру от собственника, площадью 48 м². Что вы получаете: Удачное расположение в доме: — квартира находится на 3м этаже, в средней части здания (третий подъезд из четырех); — окна выходят на две стороны — в помещении всегда достаточно света и хорошая вентиляция. Функциональную планировку: — две уютные комнаты хорошей площади(14кв.м, 17кв.м); — застеклённый, просторный балкон; — кладовка, сделанная своими руками для комфортного хранения. Готовность к проживанию: — в спальне и ванной свежий ремонт(2025г); — квартире остаётся мебель (можем согласовать). Техническое состояние: — квартира тёплая, зимой отопление работает отлично, летом не жарко; — полностью заменена трасса водопровода и канализации; — заведён электрокабель, установлен шкаф с автоматами; — установлена газовая колонка Bosch. Развитая инфраструктура: — рядом школы(29, 51) и детские сады(Терем-теремок, Чиполлино); — магазины в шаговой доступности: Пятёрочка, Магнит, Магнит косметик, Красное & Белое, Бристоль; — через дорогу несколько аптек, включая круглосуточную. Квартира не доведена до идеала в плане ремонта, но всё делалось под себя, для удобства и комфорта. По всем вопросам пишите, звоните 2-комнатная квартира (с фото) от собственника в Калуге на длительный срок
Продается уютная, солнечная 2-х комнатная квартира доме с Закрытой территорией, теppитория пoлнocтью закpытaя, въезд чeрeз шлaгбаум. В доме установлено видеонаблюдение. Плaнировка, кoторая понравится многим: • общая площадь 58,5 кв.м. две комнаты;16,5+8,5 кв.м. • большая кухня-гостиная площадью 19 кв.м. — идеальное место для семьи и приёма гостей; • уютная просторная лоджия для отдыха + вторая лоджия для хранения или небольшого рабочего уголка. +++++ квартиры: • просторная, комнаты изолированы, высокие потолки, качественная отделка (осталось поклеить обои). напольное покрытие кухня и прихожая-керамогранит, комнаты -ламинат. установлены регуляторы на радиаторах. При продаже останется новый кухонный гарнитур, варочная панель, диван, шкаф в прихожей , сантехническое оборудование. Прекрасный вид из окон. На лестничной площадке есть своя зона для хранения личных вещей. • рядом школа, детский сад, магазины, прогулочные зоны; • современная инфраструктура, удобный выезд в любую часть города; • спокойный, чистый и перспективный микрорайон. Квартира идеально подойдёт для семьи, пары или тех, кто ценит комфорт и современное пространство. 1 взрослый собственник 2-комнатная квартира от хозяина в Калуге, частное объявление
Продаётся квартира 45,8 м² — Калуга, ул. Московская, 36 Ищете уютное жильё в самом сердце Калуги? Представляем вашему вниманию просторную и светлую квартиру после полного капитального ремонта! Здесь ещё никто не жил — идеальное решение для тех, кто ценит комфорт и качество. Основные преимущества: Площадь: 45,8 м². Расположение: центр города, ул. Московская, 36. Дом: кирпичный, с закрытым зелёным двором — безопасно и уютно. Ремонт: полный капитальный ремонт, выполнен с использованием качественных материалов. Мебель: остаётся вся мебель — вам не придётся тратить время и средства на обустройство! Планировка: большая кухня-гостиная — отличное место для семейных ужинов и приёма гостей; уютная спальня; отдельная гардеробная — много мест для хранения одежды и вещей; просторная ванная комната. Места хранения: множество встроенных шкафов, которые позволят рационально организовать пространство. Инфраструктура: в шаговой доступности — торговые центры, школы, сады, магазины; главная площадь Калуги (Театральная) — всего в 100 метрах от дома; удобная транспортная развязка — легко добраться в любую точку города; Эта квартира идеально подойдёт как для собственного проживания, так и для инвестиций. Не упустите шанс стать владельцем стильного и комфортного жилья в центре Калуги! Почему нужно работать с Федеральной компанией "Этажи"? - Юридическое сопровождение сделки и гарантия финансовой защиты - Уникальные условия на услуги страхования объекта - Самые низкие ипотечные ставки - Новостройка без комиссии - Программа лояльности "Этажи Бонус" для клиентов компании "Этажи" от партнеров . Код пользователя: 138166 Номер в базе: 10309219 Снять 2-комнатную квартиру без агентов в Калуге (частник)
Продается уютная и теплая двухкомнатная квартира в кирпичном доме. Хороший и свежий ремонт, везде дорогие пластиковые окна, новые радиаторы отопления премиум класса, новая и качественная проводка, просторная лоджия с хорошей отделкой. Ванная и туалет раздельные. Район с развитой инфраструктурой, все в шаговой доступности: магазины, поликлиника, детские сады, школы, остановки общественного транспорта, железнодорожная станция, аптеки, клуб и т.д. Звоните, организую оперативный показ! Почему нужно работать с Федеральной компанией "Этажи"? - Юридическое сопровождение сделки и гарантия финансовой защиты - Уникальные условия на услуги страхования объекта - Самые низкие ипотечные ставки - Новостройка без комиссии - Программа лояльности "Этажи Бонус" для клиентов компании "Этажи" от партнеров . Код пользователя: 90334 Номер в базе: 3102414 Аренда 2-комнатной квартиры в Калуге недорого без комиссии (с фото)
Сдается 1-комнатная квартира с большой кухней-гостиной на длительный срок в новом доме на правом берегу. Квартира очень теплая и чистая, хорошие соседи, окна во двор, развитая инфраструктура. Залог можно внести частями. Звоните, рассмотрим варианты!
Арт. 109956354 В продаже дом на участке 18 соток. Адрес объекта: Калужская обл., р-н Дзержинский, с Дворцы, ул. Церковная. Село находится к западу от автодороги М3, на расстоянии 170 км от Москвы, 22 км от города Кондрово, административного центра района, и 19 км от города Калуга, административного центра области. Участок: площадь участка 18 соток участок ровный, огорожен забором Основные характеристики: общая площадь 64,8 м2 1 этаж - кухня - гостиная, прихожая - 28 м2 санузел совмещен - 4 м2 теплый пол 2 этаж - две изолированные комнаты 10.5+12.7 м2 Коммуникации: водоснабжение скважина канализация септик электричество газ индивидуальное отопление Ключи в агентстве! Оперативный показ! Звоните! Отвечу на все интересующие вопросы! Оператор недвижимости План Б - безопасная сделка с сопровождением профессиональных экспертов и опытных юристов, помощь в одобрении ипотеки на выгодных условиях, консультация и работа специалистов на всех этапах купли-продажи. План Б с нами легко! Сдаю 2-комнатную квартиру без посредников (частник)
Код объекта: 1716590. К продаже предлагается квартира в расширенном центре в Калуге, около площади Маяковского. Адрес и расположение: Россия, Калуга, улица Чехова, 7. Отличное расположение в спокойном районе с хорошей транспортной доступностью. Близость к основным магистралям позволяет быстро добраться до центра города и ключевых точек. Рядом находятся магазины, аптеки, спортивные клубы и другие объекты инфраструктуры, что делает жизнь удобной и комфортной. Описание объекта: Продаётся однокомнатная квартира в панельном доме 1962 года постройки. Квартира расположена на 3 этаже 5-этажного дома. Общая площадь составляет 31,4 кв. м, жилая — 18 кв. м, площадь кухни — 6 кв. м. Высота потолков — 2,5 м. Переделана стяжка пола. Квартира со свежим ремонтом. Ремонт и планировка: В квартире выполнен евроремонт, что позволяет новым владельцам сразу заселиться без дополнительных вложений. Комнаты изолированы, окна выходят на улицу. Наличие балкона добавляет дополнительное пространство для отдыха. В доме был произведен капитальный ремонт дома в 2023 году. Преимущества: - Удобное расположение - Хорошая транспортная доступность - Близость к объектам инфраструктуры - Выполнен евроремонт - Уютная атмосфера Это идеальное предложение для молодых специалистов, которые ценят комфорт и удобство. Не упустите возможность приобрести квартиру по выгодной цене! Позвоните нам прямо сейчас, чтобы узнать больше и записаться на просмотр. Мы гарантируем безопасную сделку и юридическую поддержку нашим Клиентам. Поможем одобрить ипотеку с сниженной ставкой. Снять 2-комнатную квартиру без посредников от хозяина в Калуге (недорого)
Продаётся 2-комнатная квартира Калуга, бульвар Энтузиастов, 7 Общая площадь — 53,7 м² Кухня — 9,4 м² 8 этаж из 9 О квартире Изолированные комнаты — комфортно для семьи Косметический ремонт, аккуратное жилое состояние Раздельный санузел Просторная лоджия Светлая квартира, удобная планировка Есть кладовая и системы хранения Что остаётся Кухонный гарнитур Плита Холодильник Стиральная машина Вся основная мебель Формат — заезжай и живи, без дополнительных вложений. Дом и двор Новый лифт Детская площадка во дворе Чистый подъезд Парковка у дома Локация Развитый район: Детский сад 13 Лицей 48 Магазины, аптеки Остановки общественного транспорта — всё рядом Кому подойдёт Семье с детьми Молодой паре Под аренду — ликвидный формат и район Звоните — покажу в удобное время. Квартира без сюрпризов, в нормальном состоянии и с понятной историей. Почему нужно работать с Федеральной компанией "Этажи"? - Юридическое сопровождение сделки и гарантия финансовой защиты - Уникальные условия на услуги страхования объекта - Самые низкие ипотечные ставки - Новостройка без комиссии - Программа лояльности "Этажи Бонус" для клиентов компании "Этажи" от партнеров . Код пользователя: 187851 Номер в базе: 3137817
Продается 3 комнатная квартира в самом центре города по улице Суворова. Квартира с евро ремонтом, сделанным из дорогих и качественных стройматериалов. Кухня столовая большая , две комнаты изолированные. Закрытая территория, въезд через шлагбаум. Новый кухонный гарнитур, в ся метель и техника остается. Чистый подъезд, хорошие соседи , сделана стяжка , новая электрика , сантехника. Никто не жил . Сделан капремонт крыши . Звоните в любое время , организую оперативный показ.















































































