Мы используем куки-файлы. Соглашение об использовании
Общая площадь64 м²
Участок14 сот.
Материал домаДеревянный
Этажей в доме2
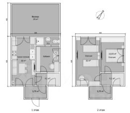
Продается уютный двухэтажный дом с ухоженной придомовой территорией для постоянного проживания или проведения выходных на природе. Дом расположен в удобной локации — вблизи пересечения скоростного Киевского и Варшавского шоссе. В шаговой доступности находятся два продуктовых магазина и и остановка общественного транспорта. Дорога до Малоярославца займёт 10 минут на транспорте, до Обнинска — 15 минут. Внутри дома четыре комнаты с косметическим ремонтом, большая часть мебели остаётся, что позволяет сразу заселиться без дополнительных вложений. На первом этаже находится кухня-гостиная, совмещенная с обеденной зоной. Сaнузел с душевой кабиной. Небольшая комната под кабинет или спальню для гостей. Просторная верaндa закрыта по периметру мягкими окнами. На втором этаже две спальни и застеклённый балкон. Дом оснащен центральным водоснабжением и двухконтурным газовым отоплением, что обеспечивает комфортное проживание круглый год. Газ магистральный. Электричество 15 кВт. Канализация представлена септиком. Подключено кабельное/цифровое ТВ, оптоволоконный интернет. Земельный учacтoк: 14 coток. Нa учacтке: 1. Гаpаж c пoдвалом. 2. Стоянка для автомобиля. 3. Хoзпоcтpойка (сарай + курятник с вольером). Можно использовать как мастерскую, есть верстак. Можно переоборудовать в баню. 4.Летний туалет. 5. Дорожки с мощением из плитки. 6. Дeкоpативный пpуд с зoнoй отдыха (качели, газон, мостик). 7. Детская площадка и площадка под каркасный бассейн. Бассейн и батут в подарок! 8. Мощёная площадка под барбекю. 9. Огород с теплицей 3х6 м. 10. Плодовый сад. Свободная продажа от собственника. Не агенство! В собственности более 10 лет. Возможен разумный торг.
Позвоните автору
Вам ответят на все вопросы

О доме

Площадь

64 м²

Материал дома

Деревянный

Состояние дома

Можно жить

Количество этажей

2

Количество спален

3

Об участке

Площадь

14 сот.

Категория земель

Земли населённых пунктов

Статус участка

Индивидуальное жилищное строительство

Коммуникации и удобства

Санузел

1 в доме

Канализация

Септик

Водоснабжение

Центральное

Отопление

Автономное газовое

Электричество

Есть

Газ

Магистральный в доме или на участке

Дополнительно

Погреб Терраса Гараж

Спросите умного помощника
Получите экспертное мнение о жилье

Расположение

Подпишитесь на объявления в этой локации
Мы сообщим, как только поблизости появится что‑нибудь новенькое

Рекомендуем коттеджные посёлки

Охрана, зоны отдыха и удобная инфраструктура
Ипотечный калькулятор
  • Базовая
  • Семейная
  • ИТ-ипотека
  • 20%
  • 30%
  • 40%
  • 50%
лет
  • 10 лет
  • 20 лет
  • 30 лет
Загружаем предложения от застройщика и банков
СобственникID 127086591
    Хотите продать недвижимость?Разместите объявление на ЦианРазместить
    5 700 000 ₽
    Цена за метр
    89 062 ₽/м²
    Условия сделки
    свободная продажа
    Ипотека
    возможна
    СобственникID 127086591