Мы используем куки-файлы. Соглашение об использовании

Продается 1-этажный дом, 161 м²

Общая площадь161 м²
Участок15 сот.
Материал домаГазобетонный блок
Этажей в доме1
Год постройки2024
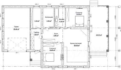
По причине переезда продаю, пожалуй, лучший дом в городе Малоярославец. Расположен на склоне в живописном историческом месте. Из дома и с террасы на 180 градусов открывается вид на реку, медвежий луг и лес и возможность любоваться прекрасными закатами и природой в любое время года. Дом расположен рядом с городищем, вокруг много родников. Дом строился длительно и основательно, продумывалась каждая деталь. Коммуникации: вода - собственная скважина (60 м), канализация - септик, электричество - 15 квт + резервный генератор с автозапуском для основных точек жизнеобеспечения (септик, кесон, холодильник и др.), отопление газовое: теплые полы во всем доме, кроме спален (радиаторы) Материал: газобетонный блок 400 мм, кровля - металлочерепица Наружная отделка: дом не отделан, но материал закуплен. К отделке планировал приступить в этом году, для этих целей был привезен природный камень с Урала. Внутренняя отделка: потолок из гипсокартона, стены - декоративная штукатурка, пол - керамогранитная плитка в прихожей, кладовой, бойлерной, санузле, коридоре и кухне-гостиной; кварцпаркет в спальнях, плитка ПВХ в гараже-мастерской. Площадка вокруг дома (около 300 кв. м) обложена брусчаткой, сделана дренажная система для отведения воды с кровли. Участок спланирован, но не засажен. Были сформированы ярусы, учитывая перепад высот (порядка 20 метров между верхней и нижней точками участка). В нижней части участка - колодец с родниковой водой (одно кольцо). В данный момент занимаемся оформлением расширения участка за счет добавления подъездной (она же парковочная) площадки, поэтому забор не менялся и требует обновления.
Позвоните автору
Вам ответят на все вопросы

О доме

Площадь

161 м²

Материал дома

Газобетонный блок

Состояние дома

Можно жить

Количество этажей

1

Количество спален

2

Год постройки

2024

Об участке

Площадь

15 сот.

Категория земель

Земли населённых пунктов

Статус участка

Индивидуальное жилищное строительство

Коммуникации и удобства

Санузел

1 в доме

Канализация

Септик

Водоснабжение

Скважина

Отопление

Центральное газовое

Электричество

Есть

Газ

Магистральный в доме или на участке

Дополнительно

Терраса Гараж

Спросите умного помощника
Получите экспертное мнение о жилье

Расположение

Подпишитесь на объявления в этой локации
Мы сообщим, как только поблизости появится что‑нибудь новенькое

Рекомендуем коттеджные посёлки

Охрана, зоны отдыха и удобная инфраструктура
Ипотечный калькулятор
  • Базовая
  • Семейная
  • ИТ-ипотека
  • 20%
  • 30%
  • 40%
  • 50%
лет
  • 10 лет
  • 20 лет
  • 30 лет
Загружаем предложения от застройщика и банков
СобственникID 113551623
    Хотите продать недвижимость?Разместите объявление на ЦианРазместить
    18 300 000 ₽
    Цена за метр
    113 665 ₽/м²
    Условия сделки
    свободная продажа
    Ипотека
    возможна
    СобственникID 113551623