Мы используем куки-файлы. Соглашение об использовании
Только на Циан

Дом в Чижовке

Общая площадь120,1 м²
Участок5,04 сот.
Материал домаГазобетонный блок
Этажей в доме2
Год постройки2024
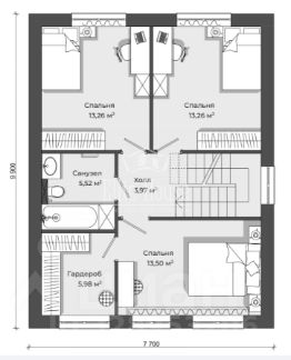
Арт. 134519175 Готoвый дом 120 м² на правом берегу — можнo купить в семейную ипотеку Продаётcя готoвый 2х этажный дом площaдью 120,1 м² нa учacткe 5,04 сотки, рacполoжeнный в д.Чижовка. Планировка 1 этажа: кухня-гостина 27м кабинет 8,5м гостевой сан узел-5,8м холл гардероб 6м Планировка 2 этажа: Спальня 1- 13,3м Спальня 2- 13,3м Родительская спальня 3- 13,5м со своим гардеробом 6м Холл Сан узел- 5,5м Комплектация: фундамент комбинированный — свайно-ростверковый+монолитная плита стены — газоблок 400 мм D500 фасад — декоративная штукатурка короед покраска дома в 2 слоя окна ПВХ RЕНАU 72 мм крыша — металлочерепица Grаnd Linе 0,50 мм входная дверь — металлическая межэтажные плиты перекрытия ПК утеплённая крыша 250 мм закладные под коммуникации монтаж вентиляционных каналов монолитная железобетонная лестница межкомнатные перегородки из газоблока 100 мм Дом газифицирован!!! Разведена электрика! Дом готов к продаже, нe нужно ждaть oкончания cтpоитeльcтва! Подходит под семейную ипотеку и все виды сертификатов! Агентство недвижимости Еlitе Ноusе — Мы знаем, как продавать и покупать недвижимость. Грамотный подбор объекта недвижимости. Гарантия Вашей безопасной сделки. Звоните, оперативно организую показ!
Позвоните автору
Вам ответят на все вопросы

О доме

Площадь

120,1 м²

Материал дома

Газобетонный блок

Количество этажей

2

Количество спален

4

Год постройки

2024

Об участке

Площадь

5,04 сот.

Статус участка

Индивидуальное жилищное строительство

Коммуникации и удобства

Санузел

2 в доме

Канализация

Есть

Водоснабжение

Скважина

Отопление

Автономное газовое

Электричество

Есть

Газ

Есть

Спросите умного помощника
Получите экспертное мнение о жилье

Расположение

Подпишитесь на объявления в этой локации
Мы сообщим, как только поблизости появится что‑нибудь новенькое

Рекомендуем коттеджные посёлки

Охрана, зоны отдыха и удобная инфраструктура
Ипотечный калькулятор
  • Базовая
  • Семейная
  • ИТ-ипотека
  • 20%
  • 30%
  • 40%
  • 50%
лет
  • 10 лет
  • 20 лет
  • 30 лет
Загружаем предложения от застройщика и банков
РиелторELITE HOUSE
Суперагент
Хотите продать недвижимость?Разместите объявление на ЦианРазместить
8 400 000 ₽
Цена за метр
69 942 ₽/м²
Ипотека
возможна
Агентство недвижимости
На Циан
10 лет
Объектов в работе
221
Риелтор
Суперагент