Мы используем куки-файлы. Соглашение об использовании

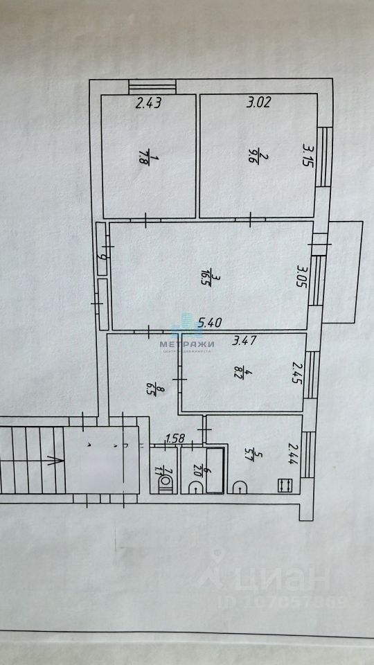
Продается 4-комн. квартира, 57,9 м²

Общая площадь57,9 м²
Жилая площадь42 м²
Площадь кухни5,7 м²
Этаж3 из 5
Год постройки1987
Арт. 134592796 ЧЕТЫРЕХКОМНАТНАЯ КВАРТИРА НА ПРОЛЕТАРСКОЙ, 27А Простор, уют и комфорт в центре развитого района! Предлагается к продаже светлая и тёплая четырёхкомнатная квартира площадью 58 м² на третьем этаже пятиэтажного дома 1987 года постройки. О квартире: Общая площадь: 58 м². -Кухня: 6 м² — можно объединить с одной из комнат (10 м²) для создания просторной кухни-гостиной. -Комнаты: 17 м², 10 м² (изолированная), 8 м² и 8 м² — идеальны для семьи, кабинета или детской. -Балкон: остеклённый, с естественным освещением и зоной для отдыха. -Ремонт: косметический, с новыми окнами и радиаторами, в прихожей, на кухне на полу плитка, хорошие обои, идеальные потолки, заменена электропроводка. -Отопление: индивидуальная система — экономия и комфорт в любую погоду. -Теплоизоляция: угловая, но очень тёплая и сухая. Инфраструктура района: В шаговой доступности: детские сады, школы, магазины, аптеки, фитнес-центр, кинотеатр. Во дворе — детская игровая площадка. Отличная транспортная развязка: легко добраться в любую часть города. Почему стоит выбрать эту квартиру? -Просторная планировка для большой семьи или творческих идей. -Современные инженерные решения для вашего комфорта. -Развитая инфраструктура и уютный двор. -Юридически чистая-один взрослый собственник. Торг уместен! Забирай метры счастливой жизни! Для записи на просмотр и дополнительной информации свяжитесь с нами.
Позвоните автору
Вам ответят на все вопросы

О квартире

Тип жилья

Вторичка

Общая площадь

57,9 м²

Жилая площадь

42 м²

Площадь кухни

5,7 м²

Высота потолков

2,5 м

Санузел

1 раздельный

Балкон/лоджия

1 балкон

Вид из окон

На улицу и двор

Ремонт

Косметический

О доме

Год постройки

1987

Тип перекрытий

Нет информации

Подъезды

6

Отопление

Центральное

Аварийность

Нет

Газоснабжение

Центральное

Спросите умного помощника
Получите экспертное мнение о жилье

Расположение

Ипотечный калькулятор
  • Базовая
  • Семейная
  • ИТ-ипотека
  • 20%
  • 30%
  • 40%
  • 50%
лет
  • 10 лет
  • 20 лет
  • 30 лет
Загружаем предложения от застройщика и банков
Помощь риелтора
Проверенный риелтор поможет купить или продать квартиру
4 299 000 ₽
Цена за метр
74 249 ₽/м²
Условия сделки
свободная продажа
Ипотека
возможна
Агентство недвижимости
Суперагент