Мы используем куки-файлы. Соглашение об использовании

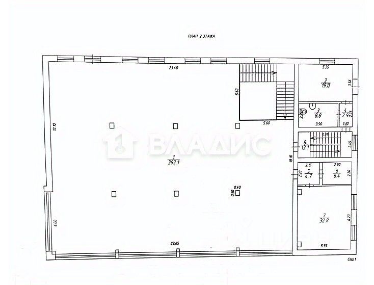
Продается торговая площадь, 479,8 м²

Площадь479,8 м²
Этаж2 из 2
ПомещениеСвободно
Код объекта: 2140921. Уникальное предложение для инвесторов и предпринимателей — торговое помещение в историческом центре Козельска по адресу Большая Советская улица, 70. Это идеальный выбор для бизнеса благодаря своей доступности и потенциалу. Коммерческий объект площадью 479,8 кв. м расположен на втором этаже двухэтажного кирпичного здания, построенного в 1974 году. Высота потолков в 3,6 м создаёт дополнительное пространство для реализации ваших идей. В помещении есть старый ремонт, но зато установлены пожарная сигнализация, вентиляция и система охраны. Свободный доступ и общий вход делают объект удобным для посетителей. Рядом есть наземная парковка, что важно для клиентов на автомобиле. Мы гарантируем безопасную сделку и юридическую поддержку нашим клиентам. Поможем одобрить ипотеку с сниженной ставкой. Не упустите шанс приобрести перспективный коммерческий объект в Козельске! Свяжитесь с нами для получения дополнительной информации и записи на просмотр.
lock

Войдите или зарегистрируйтесь
для просмотра информации

Просматривайте условия сделки и всю информацию об объекте
Сохраняйте фильтры в поиске и не вводите заново
Доступ к избранному с любого устройства
Неограниченное добавление в избранное
Позвоните автору
Вам ответят на все вопросы
Остались вопросы по объявлению?
Позвоните владельцу объявления и уточните необходимую информацию.
  • Инфраструктура
  • Похожие рядом
  • Площадь участка0 сот.
  • Общая площадь479,8 м²
Центральное отопление
Помощь надёжных риелторов
Риелтор партнёр Циан поможет купить или продать любую недвижимость
13 500 000 ₽
177 507 $
150 627
Цена за метр
28 137 ₽
Налог
УСН
Агентство недвижимости
Документы проверены