Мы используем куки-файлы. Соглашение об использовании
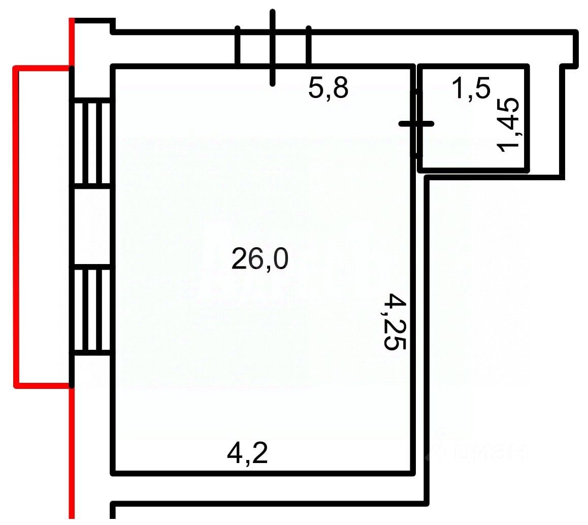
Площадь26 м²
Этаж-1 из 4
ПомещениеСвободно
Продается нежилое помещение 26 кв.м хорошей прямоугольной планировки с удобно выделенной вне основного периметра зоной для организации сан. узла. Выполнена дополнительная гидроизоляция. Помещение расположено в торце здания. Рядом множество магазинов (в т.ч. строительных), аптеки. Большая парковка, где всегда есть места. удоюный заезд, первая линия на оживленной улице. Отопление, электричество, канализация, водоснабжение (горячее и холодное), пожарная сигнализация. Бюро недвижимости "АдресЪ" основано в 2007 году. Поможем открыть ипотеку, использовать материнский капитал, сертификаты и другие субсидии. Арт. 134611641
lock

Войдите или зарегистрируйтесь
для просмотра информации

Просматривайте условия сделки и всю информацию об объекте
Сохраняйте фильтры в поиске и не вводите заново
Доступ к избранному с любого устройства
Неограниченное добавление в избранное
Позвоните автору
Вам ответят на все вопросы
Остались вопросы по объявлению?
Позвоните владельцу объявления и уточните необходимую информацию.
  • Инфраструктура
  • Похожие рядом
  • Тип зданияЖилой дом
  • Общая площадь26 м²
Центральное отопление
Помощь надёжных риелторов
Риелтор партнёр Циан поможет купить или продать любую недвижимость
1 200 000 ₽
15 821 $
13 445
Цена за метр
46 154 ₽
Налог
НДС не включен
Агентство недвижимости
Документы проверены
На Циан
13 лет
Объектов в работе
70
5,0・1