Мы используем куки-файлы. Соглашение об использовании
Площадь1 172 м²
Этаж1
Прибыль1 000 000 ₽/мес.
КатегорияСклад
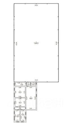
Продается ГАП. Окупаемость 8 лет. Газовое отопление. Размер производственной части 24х42 м. Промышленные полы. антипыль. Высота потолка 6 м. Двое секционных ворот. Электричество 150кВт, можно увеличить. Здание можно увеличить, залита плита рядом со строением. Земельный участок 75 соток, большая бетонная площадка. Парковка для грузовых авто. Видеонаблюдение. Офисное здание с ремонтом 172 кВ.м, отдельный вход и вход с производственной части. Удобная транспортная доступность.
lock

Войдите или зарегистрируйтесь
для просмотра информации

Просматривайте условия сделки и всю информацию об объекте
Сохраняйте фильтры в поиске и не вводите заново
Доступ к избранному с любого устройства
Неограниченное добавление в избранное
Позвоните автору
Вам ответят на все вопросы
Остались вопросы по объявлению?
Позвоните владельцу объявления и уточните необходимую информацию.
  • Инфраструктура
  • Похожие рядом
Помощь надёжных риелторов
Риелтор партнёр Циан поможет купить или продать любую недвижимость
РиелторСергей Федоров
Суперагент
  • 5,0・5
  • 17 лет 4 месяца на Циане
  • 1 объявление
  • 90 000 000 ₽
    1 263 886 $
    1 090 321
    Цена за метр
    76 792 ₽
    Налог
    УСН
    РиелторСергей Федоров
    Суперагент