Мы используем куки-файлы. Соглашение об использовании
Площадь1 744,5 м²
Прибыль350 000 ₽/мес.
КатегорияТорговая площадь, свободное назначение, стрит ритейл и еще 1 категория...
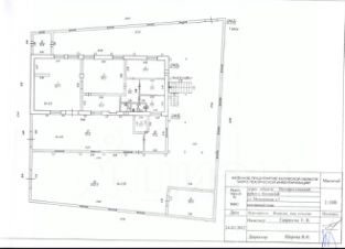
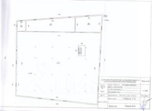
967566. Предлагаем отдельно стоящее здание с арендатором - Кондитерское производство, площадью 1 744.5 кв. м., расположенное в Калужской обл., с. Коллонтай. Без комиссии для покупателя. Преимущества объекта: -10 минут на автомобиле от ж/д станции Шемякино; -развитая транспортная доступность: в 500 м. Варшавское шоссе (А-130); -плотный жилой массив; -сложившееся окружение; -все коммуникации; -зона разгрузки/погрузки; -наземная парковка; -вблизи остановки общественного транспорта; -ЗУ в собственности; -основное целевое назначение земель: земли населенных пунктов. Технические параметры объекта: -3 входные группы; -электрическая мощность: 80 кВт; -высота потолков: 4 м. Информация об арендаторе: -арендатор: Кондитерское производство; -прибыль: 350 000 руб./мес. Свяжитесь с нами для получения дополнительной информации!
lock

Войдите или зарегистрируйтесь
для просмотра информации

Просматривайте условия сделки и всю информацию об объекте
Сохраняйте фильтры в поиске и не вводите заново
Доступ к избранному с любого устройства
Неограниченное добавление в избранное
Позвоните автору
Вам ответят на все вопросы
Остались вопросы по объявлению?
Позвоните владельцу объявления и уточните необходимую информацию.
  • Инфраструктура
  • Похожие рядом
Помощь надёжных риелторов
Риелтор партнёр Циан поможет купить или продать любую недвижимость
30 000 000 ₽
400 883 $
342 755
Цена за метр
17 197 ₽
Налог
УСН
Агентство недвижимости
Документы проверены