Мы используем куки-файлы. Соглашение об использовании
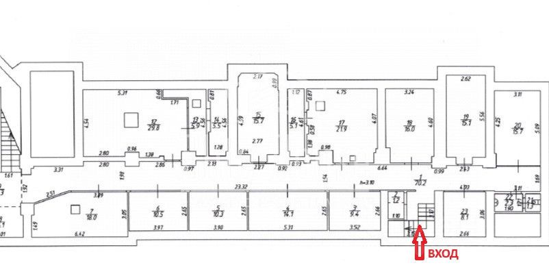
Помещение свободного назначения, 433,2 м²

Сдается помещение свободного назначения, 433,2 м²

Площадь433,2 м²
Этаж-1 из 4
Арт. 133325437 Вашему вниманию представлена АРЕНДА КОММЕРЧЕСКОГО ПОМЕЩЕНИЯ по адресу Пухова 25\27 Преимущества объекта: • Арендная площадь представляет собой зонированный мини-рынок на районе зонами разного размера • Вы сможете использовать помещения под свой род деятельности. • Назначение свободное, каждый род деятельности возможно обсудить • Возможно так же обсудить уменьшение арендной площади • Есть 2 санузла, и возможность добавить мокрые точки при необходимости • Есть отдельная разгрузочная зона со двора, где так же можно организовать лифт • Своё место для рекламы на фасаде • Небольшая наземная парковка • Хороший пеший и автомобильный трафик • В данном секторе множество якорных арендаторов • У вас есть возможность взять арендные каникулы • Вы можете стать первыми арендаторами в предложенном мини-рынке на районе. Успейте забронировать помещение под свой бизнес. Идеально подойдёт для тех кто хочет открыть: ПВЗ, магазин продовольственных или непродовольственных товаров, спортивная секция, студия танцев и т.д. Остались вопросы? Звоните! Записывайтесь на показ!
lock

Войдите или зарегистрируйтесь
для просмотра информации

Просматривайте условия сделки и всю информацию об объекте
Сохраняйте фильтры в поиске и не вводите заново
Доступ к избранному с любого устройства
Неограниченное добавление в избранное
Позвоните автору
Вам ответят на все вопросы
Остались вопросы по объявлению?
Позвоните владельцу объявления и уточните необходимую информацию.
  • Инфраструктура
  • Похожие рядом
  • Общая площадь433,2 м²
Помощь надёжных риелторов
Риелтор партнёр Циан поможет купить или продать любую недвижимость
РиелторELITE HOUSE
5,0・7
Суперагент
136 376 ₽/мес.

Прямая аренда (от года), доступны арендные каникулы, обеспечительный платёж 256 ₽, предоплата за 1 месяц

1 915 $/мес.
1 652 /мес.
Цена за метр
3 778 ₽ в год
Налог
НДС не включен
Комиссия
нет
Коммунальные платежи
не включены
Эксплуатационные расходы
не включены
Агентство недвижимости
На Циан
10 лет
Объектов в работе
246
Риелтор
Суперагент
5,0・7