Мы используем куки-файлы. Соглашение об использовании
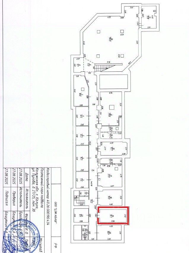
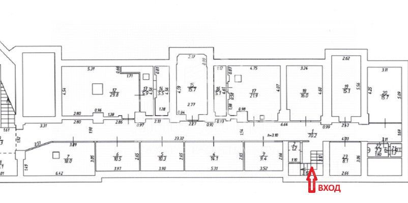
Помещение свободного назначения, 19,81 м²

Сдается помещение свободного назначения, 19,81 м²

Площадь19,81 м²
Этаж-1 из 4
ПомещениеСвободно
Арт. 126343093 Вашему вниманию представлена АРЕНДА КОММЕРЧЕСКОГО ПОМЕЩЕНИЯ по адресу Пухова 25-27 Преимущества объекта: • Торговая площадь на территории мини- рынка • Назначение свободное, каждый род деятельности возможно обсудить • В наличии различный размер торговой площади, в зависимости от формата торговой точки. • Есть вариант оборудовать помещение мокрой точкой • Своё место для рекламы на фасаде • Небольшая наземная парковка • Хороший пеший и автомобильный трафик • В данном секторе множество якорных арендаторов • Есть возможность договориться на арендные каникулы • Вы можете стать первыми арендаторами в предложенном мини-рынке на районе. Успейте забронировать помещение под свой бизнес. Идеально подойдёт для тех кто хочет открыть: ПВЗ, мастерская по изготовлению ключей, ателье, фото\копицентр, ремонт телефонов, магазин цветов\ фруктов\ сухофруктов\ молочных продуктов\ мясных продуктов\ пивной\ табачный\ зоотовары. Остались вопросы? Звоните! Записывайтесь на показ!
lock

Войдите или зарегистрируйтесь
для просмотра информации

Просматривайте условия сделки и всю информацию об объекте
Сохраняйте фильтры в поиске и не вводите заново
Доступ к избранному с любого устройства
Неограниченное добавление в избранное
Позвоните автору
Вам ответят на все вопросы
Остались вопросы по объявлению?
Позвоните владельцу объявления и уточните необходимую информацию.
  • Инфраструктура
  • Похожие рядом
  • Общая площадь19,81 м²
Помощь надёжных риелторов
Риелтор партнёр Циан поможет купить или продать любую недвижимость
РиелторELITE HOUSE
5,0・6
Суперагент
10 932 ₽/мес.

Прямая аренда (от года), доступны арендные каникулы, обеспечительный платёж 10932 ₽, предоплата за 1 месяц

147 $/мес.
125 /мес.
Цена за метр
6 623 ₽ в год
Налог
НДС не включен
Комиссия
нет
Коммунальные платежи
не включены
Эксплуатационные расходы
не включены
Агентство недвижимости
На Циан
10 лет
Объектов в работе
223
Риелтор
Суперагент
5,0・6