


51 639 ₽/м²
Продам 3х комнатную квартиру в Калужской обл,Жуковский р-н,село Трубино,квартира требует частично косметического ремонта .Так же есть плюсы большой балкон(лоджия).В шаговой доступности,магазины,школа, садик,спортиная площадка. Быстрый выход на сделку,без обременений.Просмотр квартиры возможен по звонку заранее.



112 766 ₽/м²
Продается уютная однокомнатная квартира в городе Белоусово, на Московской улице. Общая площадь квартиры составляет 47 кв. м, из которых жилая площадь — 24 кв. м, а кухня — 9 кв. м. Квартира расположена на 7-м этаже 9-этажного кирпичного дома, построенного в 2009 году. Высота потолков — 2.8 метра. Квартира не угловая, очень теплая, даже зимой открыты окна, дом монолитно кирпичный, поэтому соседей не слышно. Один взрослый собственник, более 8 лет Квартира с косметическим ремонтом, поэтому вы сможете сразу заехать и жить. В комнате и на кухне есть все необходимое для комфортного пребывания. Санузел совмещенный, в хорошем состоянии. Из окон открывается вид на улицу, что добавляет свет и простор. В квартире также имеется лоджия, утеплена открыта круглый год. Район обладает развитой инфраструктурой: в шаговой доступности находятся школы, клиники и магазины. Это позволяет удобно организовать повседневные дела и заботиться о здоровье. Транспортное сообщение хорошее, поэтому вы без труда доберетесь до нужного места в городе. Квартира продается от собственника, без посредников и дополнительных комиссий. Все документы готовы к сделке, возможна ипотека. Это отличная возможность приобрести жилье по выгодной цене. В собственности более 6 лет.



63 518 ₽/м²
Один из самых экологически чистых районов. Рядом школа, детский сад, салон красоты, аптека, медпункт, почта, новые детские и спортивные площадки, скейт-парк, библиотека, филиал Жуковской школы искусств, прогулочные аллеи с лавками. В непосредственной близости дачные кооперативы, в которых можно приобрести приусадебные участки. Село окружено сосновым бором с дорожками для прогулок, в пешей доступности река Протва, в лесу много грибных и ягодных мест. Продовольственные и продуктовые магазины, в том числе сетевой магазин Магнит. Пункты доставки Wildberries и Ozon.



92 593 ₽/м²
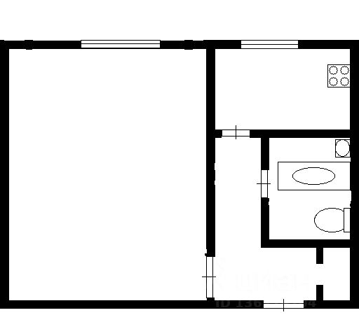
Уважаемые покупатели, представляю Вашему вниманию уютную трехкомнатную квартиру общей площадью 70,6 кв м, расположенную на первом этаже 2 этажного Этот вариант идеально подойдет тем, кто ценит комфорт и удобство расположения, чистый воздух и красивую природу! Рядом имеется детская площадка, что станет прекрасным местом для игр ваших детей. Также рядом находятся все необходимые объекты инфраструктуры: школа, детский сад, парк для прогулок, магазины . Квартира порадует Вас качественным ремонтом, который выполнен с учетом современных стандартов и требований. Просторные комнаты наполнены светом и воздухом, а раздельный санузел добавляет комфорта в повседневное использование. Наличие балкона позволит наслаждаться чашкой кофе на свежем воздухе, любуясь видом на тихую зеленую придомовую территорию . Помимо этого, стоит отметить, что в квартире проведен газ, что является важным аспектом для создания домашнего уюта и экономии на коммунальных платежах. Под домом располагается сухое подвальное помещение для хранения инвентаря и прочих вещей . Перед домом расположен участок 5соток с беседкой , теплицей , плодородной землей и садовыми деревьями Участок огорожен , проведена вода . Подходит под строительство бани ! Также есть просторный гараж с сухим подвалом для вашего авто Приглашаю Вас оценить все преимущества данного предложения лично . Можно рассмотреть покупку квартиры без участка и гаража ! Квартира без обременений , 1 взрослый собственник , быстрый выход на сделку !



55 435 ₽/м²
Уютная двушка в заповедном месте в тихом поселке, чистейший воздух и вода, вид из окон во с тенистыми деревьями и на центральную прогулочную улицу. В квартире газовая плита, вся необходимая кухонная мебель, стиральная машина, телевизор, интернет. Поселок расположен в окружении леса, грибные и ягодные места, в 2 км. река с пляжем. Тихие соседи, в 2-х минутах пешком детский сад и школа, Сбербанк, сетевые магазины Магнит, Дикси, Пятерочка. Кованый балкон и цветочница на окне понравятся любителям разводить летние цветы. Обременений нет, собственник один, в квартире никто не прописан.



115 385 ₽/м²
Продается чистая, светлая 3-х комнатная квартира расположена на 5 этаже из 9, по адресу: Калужская область, Жуковский район, г. Белоусово, ул. Московская, д. 91. Квартира после качественного евро ремонта. Из окон открывается вид на храм (с невероятными заказами и рассветами) и так же на двор. Рядом с домом в шаговой доступности магазины: Пятерочка, Ермолино, Красно белое, банкомат, в 10 минутах от дома расположена школа и детский сад, а через дорогу остановка общественного транспорта. Соседи дружелюбные, чистый и аккуратный подьезд. Продажа от собственника. Для реального покупателя возможен торг.



78 176 ₽/м²
Продается однокомнатная квартира в г. Белоусово ул. Гурьянова 2 Квартира находится на четвертом этаже пятиэтажного кирпичного дома. Рядом вся инфраструктура: детский сад, школа, поликлиника, фитнес клуб, продуктовые магазины, Пятёрочка, Магнит. Пункты выдачи товаров Озон, ВБ, Яндекс Маркет, СДЭК. Окна пластиковые. Общая площадь 30,7 кв. Санузел смежный. Без балкона. Под ипотеку и маткапитал подходит. Рассматриваю варианты обмена на недвижимость в Обнинске и МО с доплатой с моей стороны. Чистая продажа. Сам единственный собственник. В собственности более 5 лет Документы готовы к продаже. Покажу в любое время по договорённости



66 337 ₽/м²
Продаю 2 ком квартиру от собственника в Кременки Калужской области. Квартира очень тёплая и сухая ,большая лоджия, квартирa требуется ремонтa При продаже оставляем всю мебель и технику, по желанию Просмотр по предварительной договорённости за ранее, Ключи на руках . Рядом сеть магазинов и аптек, а так же школа . Реальному покупателю Торг возможен Пишите в телеграмм.



44 969 ₽/м²
Продается просторная 2-х комнатная квартира в п. Курилово(территория воинской части), 48,7/28/8.1, два балкона(не застеклены), 2 этаж, 1 совершеннолетний собственник, обременений нет. Рядом детский сад, школа, сетевые магазины (Магнит, Дикси, Пятёрочка), дом культуры, банк. Комнаты изолированные, санузел раздельный. Посёлок расположен в лесу, экологически чистый район, грибные и ягодные места. Свободная продажа. Рассмотрим ипотеку любых банков.



80 292 ₽/м²
Продается 1-комнатная квартира от собственника (не агентство) на первом этаже пятиэтажного дома в одноподъездном кирпичном доме, общей площадью 41,1 кв.м., комнатой 19,1 м, большой кухней 8,8м, просторным совмещённым санузлом 3,4 м и удобной входной зоной +коридор 8,4 м, высотой потолков 2,50 м. В квартире выполнен ремонт кухни (кухня остается новым владельцам) и сан узла, коридор и комната требует косметического ремонта. Особенность комнаты в том, что наличие 2х окон, 2х батарей и удачного метража, можно разбить ее на зоны (пример как это можно сделать показан на фото, но это один из множества вариантов, фантазия безгранична.) и получить 2 комнаты. Квартира теплая, сухая и просторная, окна выходят во двор, что обеспечивает тишину и уединение. Соседи тихие интеллигентные люди, рядом квартира пустует, тишина и покой. Дом удален от соседних домов, имеется парковка. В случае необходимости, под балконом можно оборудовать зону хранения (подвал), балкон застекленный -3м. 1 взрослый собственник, в квартире никто не прописан уже более 10 лет, быстрый выход на сделку. Развитая инфраструктура: в шаговой доступности находятся школы и детские сады, поликлиника детская и взрослая, сетевые продуктовые магазина Магнит, Дикси и Пятерочка а так же овощной рынок. Недалеко расположен Храм, речка, а так же за речкой есть еще один старинный храм. г. Кременки это экологически чистая местность с красивыми местами и природными заповедниками. Просмотры в любое для Вас время по предварительной договоренности.



82 569 ₽/м²
Продаётся прекрасная 2-х комнатная квартира на 5-м этаже 5-ти этажного одноподъездного кирпичного дома. Проблем с крышей не было. Дом располагается в центре города. В шаговой доступности школы, детские садики, отделения банков, магазины, скверы, остановка общественного транспорта. В квартире был сделан хороший ремонт,но при желании можно обновить.Заменена вся электропроводка. Квартира продается с мебелью, кроме дивана (но все обсуждаемо) и техникой. А подвале есть кладовка 4 кв.м.В собственности более 15 лет, приватизирована и юридически чиста.



90 312 ₽/м²
Квартира расположена в красивом, живописном месте. Очень зеленый город. Есть река. До недавнего времени не было никаких производств. Спокойный экологически чистый город. Прекрасное место для того, чтобы спокойно растить детей. Две школы, два детских садика, поликлиника, много магазинов. В городе можно купить абсолютно все не выезжая из него. Город расположен вдоль трассы, на границе с московской областью. Хорошее транспортное сообщение до Москвы. Продается трехкомнатная квартира от двух собственников: приватизирована на двух человек. Средний фонд. Дом теплый, чистый, кирпичный, мусоропровод в доме. Также есть мусорный контейнер на улице. Двор очень зеленый. Окна - на две стороны. Одна сторона солнечная, другая - теневая. Большая лоджия, не застекленная (шкаф для хранения, на полу линолеум). В квартире хороший ремонт. В двух комнатах ,в туалете и в коридоре натяжные потолки. В одной из комнат крашеные стены и потолок (дизайнерский ремонт). Во всех комнатах, в коридоре - линолеум. В кухне красивая большая плитка на полу, на потолке - панели. Кухонный гарнитур остается в подарок. В коридоре есть большая антресоль с двумя выходами: в кухню, в коридор. Есть большая кладовая. В туалете также хороший ремонт: современная плитка, натяжной потолок. Чистая ванная, после ремонта.



78 086 ₽/м²
Продается уютная квартира в городе Кремёнки, на Молодёжной улице. Общая площадь квартиры составляет 39.7 кв. м, с просторной кухней в 8.3 кв. м. Квартира находится на 6 этаже 11-этажного дома, построенного в 2017 году. Свободная планировка позволяет вам оформить пространство по вашему вкусу. Окна выходят во двор, что обеспечивает тишину и уют. В квартире требуется ремонт, что дает вам возможность создать интерьер вашей мечты. Есть одна лоджия, где можно наслаждаться свежим воздухом и видами на двор. Санузел раздельный, что удобно для повседневного использования. Дом оборудован пассажирским лифтом и пандусом, поэтому можно с комфортом пользоваться подъездом и перемещаться по этажам. Во дворе предусмотрена наземная парковка, а значит, у вас всегда будет место для автомобиля. Инфраструктура района развита: в шаговой доступности находятся школы, детские сады и магазины. Условия сделки: продажа от собственника. Квартира без обременений, что значительно упрощает процесс покупки. Возможна ипотека, все документы готовы к сделке. Приглашаем вас на просмотр! Записывайтесь на удобное для вас время и оцените все преимущества этой квартиры лично.



59 574 ₽/м²
Я 1 собственник. свободная продажа. квартира покупалась за наличный расчёт. в корридоре, кухне и туалете пол - плитка. Мебель могу оставить по согласованию. Вся мебель новая (кроме дивана в зале). Квартиру покупал родителям жить, но они решили жить в своём доме. Из-за этого решил продать. По всем вопросам звонить с 9 до 21 часов не позже и не раньше. Показ по согласованию - родители будут приезжать показывать им там дом рядом купили я сам в Москве живу и если нужен именно как собственник то могу приехать не проблема.



118 545 ₽/м²
Продается однокомнатная квартира в уютном городке Кремёнки, расположенном в Калужской области. Квартира находится на втором этаже девятиэтажного дома, построенного в 2017 году. Общая площадь составляет 42.2квадратных метров, из которых 18,4 квадратных метра — жилая площадь, а кухня занимает 8,4 квадратных метра. Высота потолков — 2,7 метра, что создает ощущение простора. Окна квартиры выходят во двор, обеспечивая тишину и комфорт. В квартире сделан дизайнерский ремонт, который подчеркивает современный стиль и функциональность пространства. Планировка максимально удобна: просторная кухня, объединенный санузел и лоджия, где можно наслаждаться утренним кофе. Встроенная мебель и техника делают проживание еще более комфортным, а дизайнерские решения создают атмосферу уюта и стиля. Дом находится в отличном состоянии, оборудован пассажирским лифтом и пандусом, что делает его доступным для всех категорий жильцов. Во дворе имеется наземная парковка, поэтому можно не переживать о месте для автомобиля. Район предлагает все необходимое для комфортной жизни. В шаговой доступности расположены школы и детские сады, что особенно удобно для семей с детьми. Также рядом находятся магазины, где можно совершать ежедневные покупки. Хорошая транспортная доступность позволяет быстро добраться до нужных мест. Продажа квартиры осуществляется без посредников, от собственника. Возможна продажа в ипотеку, все документы готовы к сделке, юридически квартира "чистая". Это предложение — отличный вариант как для личного проживания, так и для выгодного вложения в недвижимость. Приглашаем вас на просмотр, чтобы оценить все преимущества этой квартиры. Звоните и записывайтесь на удобное для вас время. Не упустите возможность стать обладателем уютного и стильного жилья в тихом и комфортном месте!



95 541 ₽/м²
Срочно продается 1 комнатная уютная квартира. Косметический ремонт пластиковые окна. Теплая квартира остается вся мебель при желании можем вывезти.В собственности более 20 лет. Тихий район в доступном шаге вся инфраструктура, во дворе имеется детская площадка а так же парковочные места.Возможна ипотека,мат капитал, быстрый выход на сделку.



93 248 ₽/м²
Продается уютная однокомнатная квартира площадью 31.1 кв. м на пятом этаже пятиэтажного панельного дома 1996 года постройки. Квартира расположена в тихом районе Балабаново, Калужская область. Жилая площадь составляет 12.4 кв. м, кухня — 7.1 кв. м, что делает ее идеальной для комфортного проживания. Высота потолков — 2.49 метра. Окна выходят во двор, что обеспечивает тишину и дополнительный уют. До Ж/Д станции Балабаново 10 минут пешком спокойным шагом. Квартира готова к проживанию: выполнен косметический ремонт, установлены все необходимые коммуникации. Дом находится в хорошем состоянии, регулярное обслуживание и поддержание порядка в подъезде. Парковка возле дома, поэтому можно без проблем оставить автомобиль рядом. В шаговой доступности магазины. Развитая инфраструктура района позволяет быстро добраться до всех необходимых объектов. Прямая продажа от собственника, без посредников. Квартира без обременений. Полная стоимость в договоре. Приглашаем вас на просмотр, чтобы лично оценить все преимущества этой квартиры. Записывайтесь заранее, будем рады вас видеть!






94 059 ₽/м²
Продаётся однокомнатная квартира в среднем состоянии на улице Красных Зорь, дом 5, на 5/5 этаже кирпичного дома. Общая площадь квартиры 30, 3 м. кв., кухня 6, 4 м. кв. , имеется балкон. Дом находится в районе ж/д вокзала, удобная транспортная доступность. Рядом расположен городской парк и Комсомольские пруды. Прекрасная возможность для вечерних прогулок. Развитая инфраструктура, продуктовые магазины на любого покупателя, продуктовый рынок. Цена: 2850 000 Обременений нет. Возможно приобретение в ипотеку и мат. капитал. Звонить с 09:00 до 21:00. Показы в удобное для Вас время.



97 859 ₽/м²
Продажа от собственника покупателям без комиссии, агентам с комиссией. Квартира под ремонт, учтено в цене! Агентов - приведу покупателя за 100 000р, уговорю его на покупку и возьму комиссию с двух сторон - просьба не беспокоить. Главные преимущества данного предложения — центр города, локация топ! — есть балкон! — квартира не угловая — центральное горячее водоснабжение, не колонка! — кирпичный дом — легко сдать в аренду — свободная продажа — отсутствие зарегистрированных! — отсутствие обременений и долгов — один! взрослый собственник — квартира в одной семье с постройки дома, прозрачная история, чистые документы Продаётся светлая и тёплая однокомнатная квартира с балконом на первом этаже кирпичного дома 1977г постройки в уютном и обжитом центре Обнинска. Вблизи нет проезжей дороги, дом в глубине двора. Толстые кирпичные стены значительно теплее панельных, комфортные широкие подоконники. В 5 минутах ходьбы ТРК Триумф Плаза. Очень удобно посещать городские праздники, которые обычно проходят на площади у Плазы. В шаговой доступности красивая зона отдыха у ЖК "Циолковский" со скейт парком и водной гладью. Также рядом два фитнес-клуба, СССР и Окридж, отличная школа N11, детский сад. По Обнинским меркам очень хорошая локация. У дома просторная парковка, много зелени. Окна квартиры выходят за дом, юго-восток, красивый вид на знаменитую Фёдоровскую метеовышку. В квартире установлены счётчики на воду, новый радиатор в комнате и ПВХ балконный блок. Произведена замена водопроводных труб и канализации. Просторная 18-метровая комната! В коридоре вместительная кладовка. Управляющая компания одна из лучших. Чистый подъезд, хорошие соседи. Общее состояние жилое. Сантехника вся в рабочем состоянии. Перепланировок нет. Подходит под ипотеку. Один взрослый собственник, наследство по закону больше 3х лет, квартира в одной семье с момента постройки дома. Полная стоимость в договоре. В квартире никто не зарегистрирован. Без долгов и обременений. Свободная продажа. Показы по договорённости.






159 000 ₽/м²
Продается 4-к. квартира 108 м2, в ЖК Циолковском, в центре города Обнинска на проспекте Ленина, 137к3. Рядом объекты социальной и спортивной инфраструктуры города: дворец спорта с бассейном и ледовой ареной, центр детского творчества, теннисная академия, концертный зал, лесопарковая зона, мфц мои документы. С 1-го по 3-й этажи комплекса занимают коммерческие площади: супермаркет, кафе, салон красоты, аптека, медицинская клиника, стоматология, салон цветов, зоомагазин, ветлечебница, офисы и далее. Напротив дома, современный сквер у дома ученных, где много площадок активности для молодежи. ЖК Циолковский, состоит из трех 19 этажных и одного 12 этажного домов с огороженной территорией "двор без машин". Дома монолитные, с вентилируемыми фасадами отделаны керамогранитом. Современные бесшумные лифты. Стильный дизайн входных групп и межквартирных холлов, потолки - 3 метра, ландшафтный дизайн, детские площадки с травмобезопасным покрытием, подземный паркинг с опцией лифта "паркинг-квартира", безопасность: консьерж, домофон, видио наблюдение. Квартира 108 м2, имеет: большую светлую гостиную 42 м2., совмещенную с кухней и холлом, три просторные комнаты, два санузла, гардеробную, постирочную, прихожую. В квартире выполнены работы по расширению пространства. Квартира подготовлена к ремонту. Свободная продажа, 5 лет в собственности с 10.07.2020г., никто не прописан, подходит под ипотеку. ПОЛНАЯ СТОИМОСТЬ В ДКП. Если остались вопросы, отвечу на них. Можете написать здесь или позвонить.
| 🔷 Средняя цена продажи: | 3,3 млн руб. |
| 🔷 Средняя цена за м2: | 78,1 тыс. руб./м² |
| 🔷 Минимальная стоимость: | 2 млн руб. |
| 🔷 Самый дорогой объект: | 7,2 млн руб. |