


165 890 ₽/м²
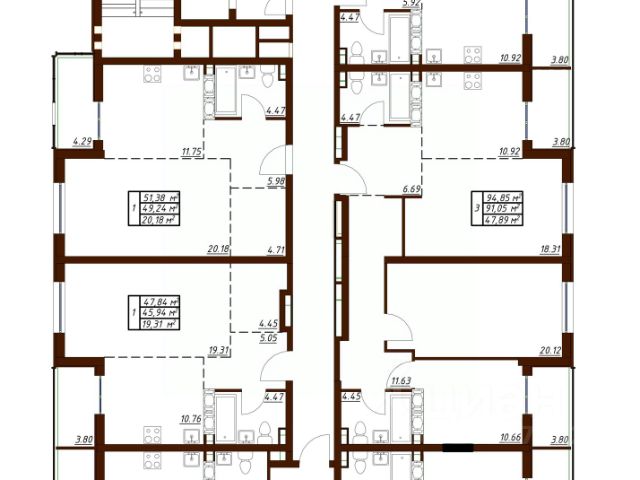
ЖК Пушкин — это новая строка в жизни города: жилой комплекс, который совместил культурное наследие, изысканность и современные технологии. Если вы хотите жить в комфортной среде и при этом на природе, то правильным решением будет ЖК Пушкин. Суперсовременный квартал вблизи уникального паркового ансамбля с благоустроенной территорией и комфортной инфраструктурой. 19 этажей неповторимых видов на панораму города, пруды и зелень парка. Парадные. Лобби сочетает в себе изысканность и простые формы, сложные цвета и фактуры. Скоростные лифты с надежной системой безопасности соединяют подземный паркинг, рассчитанный на 128 машино-мест, с жилыми этажами, доставляя резидентов к квартирам на скорости 1,6 м/с. Для безопасности жителей на территории ЖК Пушкин работает видеонаблюдение. Стильное пространство лобби разделено на несколько зон: притягивающая внимание комфортная зона ожидания с мягкими креслами и просторный лифтовый холл. Дизайнерское освещение лаконично подчеркивает общую концепцию пространства, тем самым объединяя дизайн лобби. Места заботы о животных, велосипедные и колясочные, кладовые а так же скрытые места для блоков кондиционеров, все продумано до мелочей, для вашего комфорта








































































































































