


178 877 ₽/м²
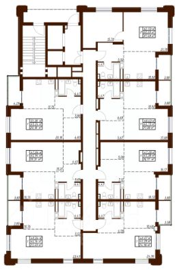
Жилой комплекс "Новый город" расположен в районе Заовражье (г.Обнинск). Дома граничат с лесным массивом, а сам район отличается благоприятными экологическими условиями и активно развивается. Рядом с комплексом расположены остановки, запущено движение общественного транспорта. В "Новом городе" есть абсолютно всё, что нужно для жизни: супермаркеты, магазины косметики и товаров для дома, аптека, пункты выдачи интернет-заказов, торговый центр и ресторан авторской кухни. Несколько школ на территории комплекса с инновационной программой и физико-техническим уклоном - это еще один большой плюс новостройки: родителям не нужно ежедневно тратить время на то, чтобы отвезти ребенка на учебу и обратно. В домах ЖК "Новый город" покупателям предлагаются квартиры с черновой отделкой или квартиры с чистовой отделкой от застройщика, в которую можно сразу переехать после получения ключей. Черновые работы выполняются застройщиком по единым стандартам, а объем предстоящего ремонта за счет этого существенно уменьшается. В квартире будут установлены радиаторы, приборы учета холодной и горячей воды, выровнены и готовы для дальнейшей чистовой отделки поверхности стен и потолков. На полу цементно-песчаная стяжка, а также дополнительная шумо- и гидроизоляция. Потолки в квартирах - 3 метра. На цокольном этаже дома подземный паркинг, а также отдельные кладовые. Дома оснащены автоматизированной системой "умный дом" с поквартирным сбором данных о потреблении ресурсов, онлайн-видеонаблюдением, системой контроля и управления доступом в подъезд через мобильное приложение. В нашем офисе вы можете получить бесплатную юридическую консультацию по вопросам любой сложности. Продажа квартир по ДКП. Бронь и подача заявки на ипотеку в офисе продаж - бесплатная. Звоните! Квартира 267

































































































